Stendardo Menningen Architectes

Maison de Quartier de Châtelaine - Balexert

Stendardo Menningen Architectes | 18. January 2017
Photo: Federal Studio

The new community center located in the Châtelaine-Balexert seeks to preserve a logical continuity and preservation of the existing landscape as well as construct synergies with the surrounding buildings. This functional and spatial continuity along with the existing topography allows for an optimal distribution of the project and its spatial requirements. This strategy ensures a balance between the volumetric needs and the shape of the terrain shape forming a direct relationship. 

Photo: Federal Studio

The volume of the new community center twists and folds to satisfy the requirements of the site and allows for a natural openness towards the beautiful surrounding landscape. The new building thus increases the relationship between the interior and exterior by guaranteeing natural light optimal quality of the internal flow and movement. The spatial distribution expands and is no longer akin to the traditional corridor but becomes a space in its own right allowing for natural interaction. 

Photo: Federal Studio

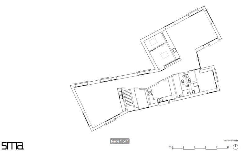
The single-leveled building facilitates the connections and fluidity of the circulation, taking into consideration the needs of people with reduced mobility. To achieve this, the ground floor has two core areas on either side located at the end of each activity rooms. 

Photo: Federal Studio

The roof of the building has 4 sides. The front cover of the main entrance offers a protected area. Access to the technical rooms located in the basement can be reached from the outside, retaining its functional independence. The office of the educators and community center administrators are located near the entrance.

The new structure seeks to reflect a contemporary public building through its articulated volume as well as through its wooden structure. 

Photo: Federal Studio
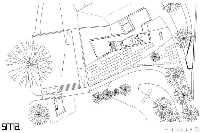
Site Plan (Drawing: SMA)
Ground Floor Plan (Drawing: SMA)
Photo: Federal Studio
Photo: Federal Studio
Photo: Federal Studio
Photo: Federal Studio
Elevations (Drawing: SMA)
Section (Drawing: SMA)

Other articles in this category