Les architectes FABG
Mont-Laurier Multifunctional Theater
Located in the Laurentian Mountains, 250 kilometers northwest of Montreal,
Mont-Laurier is a small town where the forest industry still plays a central role despite a declining demand for lumber.
The building site is located on the southern embankment of the Lievre River between the cathedral and the public school.
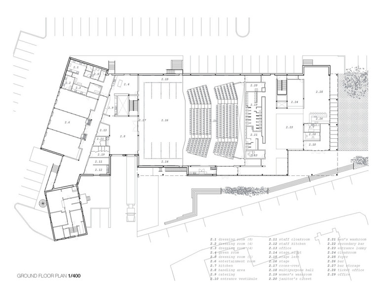
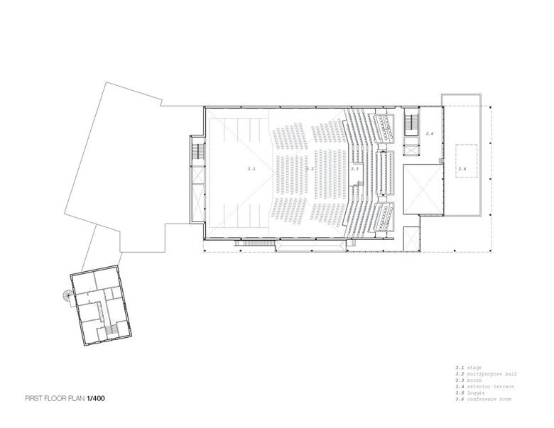
The guidelines of the architectural competition initiated by a local non-profit society stressed the need for a multipurpose hall able to accommodate traditional performing art events and offering a series of other configurations for cabarets, banquets, corporate events, and trade shows. The capacity of the hall is variable from 700 to 270 seats in order to accommodate comedy shows, theatre presentations, school performances and various concerts. The gross floor area for the project is 3500m2 and the budget for tender as $9.2M excluding equipment and taxes.
The hall is divided in three sections that combine a series of mechanisms for easy and efficient reconfiguration. The portion closest to the stage consists of a platform on synchronized Spiral lifts with seating sections gliding on rails. The middle portion has telescopic seats that retract to provide additional floor space when needed. Finally, the rear section of the hall features a mezzanine of 184 seats whose guardrail can be removed.
Our architectural proposition was based on a structural grid of cross-laminated wood beams that supports the roof and creates a canopy over the main entrance. It clearly communicates the importance of wood for the region and supports the local development of new technologies that add value to this natural resource that has a better environmental footprint than steel and concrete.
The project offers a new cultural model for regional development blurring the lines between experimental theatre, convention center and concert hall. It is in a constant process of transformation offering to the community different artistic performances, corporate events and socio-cultural activities every day, all year long.
Related articles
-
-
Allied Music Centre/Massey Hall Renovation and Expansion
KPMB Architects | 01.12.2025 -












