Arshia Architects
MU77
The American Institute of Architects Los Angeles (AIA|LA) announced the winners of its prestigious 2016 Design Awards program Monday night, October 24, 2016. Arshia Architects was selected for its MU77 project in Los Angeles.
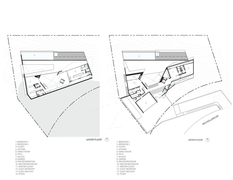
Located on Mulholland Drive, this single-family residence scheme was molded by the strict regulations of the Mulholland Scenic corridor plan along with extreme site constraints. The residence is integrated into the surrounding landscape with a geometric appearance mimicking the terrain and sudden deviations of rock formations within the natural landscape. Sunken 18 feet below street level to ensure clear views from the street atop the building, fitting the project within the two story envelop became the main limitation. The private rooms and a convertible office with a sliding partition wall is housed in the upper level and the main living and entertainment centers were situated on the lower level, aligned with the outdoor deck and infinity pool.
PROJECT DETAILS | Architect: Arshia Architects | Design Collaboration: Axel Schmitzberger | Project Team: Miguel Gonzales, Brittany DePaul, Spencer Brennan, Felix Monasakanian | Structural Engineer: Amir Pirbadian | Civil Engineer: Joy Civil Engineering | Area: 5,000 sf












