MIA Design Studio

Naman Spa

MIA Design Studio | 21. July 2015
Photo: Oki Hiroyuki

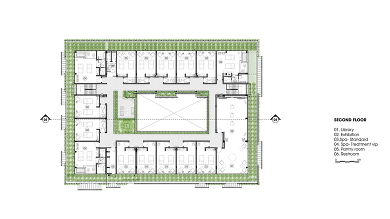
Fifteen stunning treatment rooms are endowed with lush open air gardens, deep soak bathtub and cushioned daybed built for two. Keep fit at the equally sleek health club with gym, meditation and yoga sessions held at the open lounge garden in the still cool mornings. The ground floor contains open spaces with relaxing platforms surrounded by serene lotus ponds and hanging gardens. A true space where all senses are touched and the mind comes to peace.

Tranquility Oasis (Photo: Oki Hiroyuki)
Green Texture Wall (Photo: Oki Hiroyuki)

The architectural design company MIA Design Studio’s ingenious use of natural ventilation keeps the building cool and gives the guest a refreshing experience. With use of local plants, each retreat becomes a healing environment where the guest can enjoy a luxurious wellness in privacy.

Green Texture Wall (Photo: Oki Hiroyuki)
Smoothly Flowing (Photo: Oki Hiroyuki)

Different areas flow smoothly into each other and the beautiful landscape creates an amazing journey into a dream like experience.  The facade is composed by lattice patterns alternated with vertical landscapes that filter the strong tropical sunlight into a pleasant play of light and shadow on the textured walls. Various plants are carefully allocated and become a part of the architectural screens.

Natural Ventilation (Photo: Oki Hiroyuki)
Local Plants (Photo: Oki Hiroyuki)
Light and Shadow Wall (Photo: Oki Hiroyuki)
Treatment Room (Photo: Oki Hiroyuki)

PROJECT FACTS

Architect:
MIA Design Studio
Developer: Thanh Do Investment and Construction Cooperation
Location: Hoa Hai Ward, Ngu Hanh Son District, Da Nang City, Vietnam
Development land area: 1,600 sqm
Number of rooms: 15
Launch date: March 2014
Commission date: February 2015
Principal Architect: Nguyen Hoang Manh
Conceptual Design: Nguyen Hoang Manh, Nguyen Quoc Long
Technical Design: Bui Hoang Bao
Interior Design: Steven Baeteman, Truong Trong Dat, Le Ho Ngoc Thao
Photograph: Hirouyki Oki

Ground Floor Plan (Drawing: MIA Design Studio)
Second Floor Plan (Drawing: MIA Design Studio)
Exploded Axonometric (Drawing: MIA Design Studio)
Building Section, Ventilation Diagram (Drawing: MIA Design Studio)
Elevation (Drawing: MIA Design Studio)

Other articles in this category