Architecture Patrick Mauger
National Geographic Institute (IGN) and French Meteorological Service
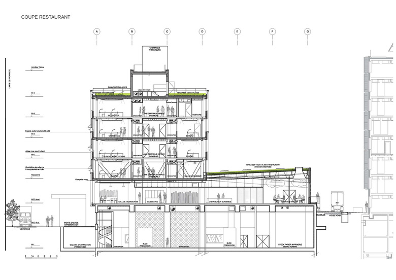
The IGN and Météo France Geosciences Center is a major renovation operation permitting the transformation of a 1980s block into a Very High Energy Performance (VHEP) building with a surface area of 15,900 sm.
The agency’s work concentrated on IGN’s B building, opening it out through the creation of a garden shared with building A. The program called for the conservation of the volumes through the creation of central patios. The agency went even further, freeing the space between the buildings and creating a single entity for the newly rehabilitated building.
Initially comprising offices and workshops, as well as a first aid station and an inter-company restaurant, the building has been enriched through the incorporation of new amenities such as a multimedia library, a music room, and sports halls.
The timber framed façades reinforce the identity of the site, developing a certain osmosis with building A while simultaneously affirming its durable and innovative nature through its exceptional proportions.
Apart from the spatial densification and harmonization of the façade, the design work integrated all aspects linked to energy performance: façade glazing chosen to meet thermal and acoustic requirements; thermal stacks distributed over the length of the building to extract hot air from the corridors (summer) and recuperate hot air from the south and west façades for redistribution to the offices (winter).
A large number of other complementary active systems have been developed to enrich this environmental approach: use of geothermal energy, recuperation of energy from all air handling plants, rooftop installation of solar panels and creation of a planted roof to reduce leakage flows and increase the building’s thermal inertia.
PROJECT CREDITS
Program: Offices, inter-company restaurant, comercial space, social, cultural and recreational areas
Location: 73-75, avenue de Paris, 94165 Saint-Mandé
Client: French Ministry of Ecology, Sustainable development and Energy (Ministère de l’Écologie, du Développement durable et de l’Énergie-MEDDE)
Project management: Architecture Patrick Mauger, architect Bertrand Perreaux, project leader; VS-A, façade engineers; Setec Bâtiment, generalist engineers; Delporte Aumond Laigneau, building surveyor A.V.L.S, acoustic engineers; Sophie Barbaux, landscape designer Conceptic’art, kitchen design engineers
General contractors: SICRA, lead contractor; CBC Bluntzer, façade subcontractor Lefort Francheteau, HVAC; Phibor, power and lighting installations- communications installations
Net buildable floor area: 15 971 m2
Cost: €30,900,000 excl. VAT
Façade cost: €4,200,000 excl. VAT
Engagement agreement: August 2012
Outline proposals: February 2010
Schematic design: June 2010
Building permit obtained: November 2011
Commencement of works: January 2012
Handover: July 2014
Related articles
-
-
The Three-Body Problem: Trapped in a Wave Sandwich
Eduard Kögel, Scenic Architecture Office | 13.04.2026 -
-










