Hamonic+Masson & Associés

New’R Building

Hamonic+Masson & Associés | 27. July 2017
Photo © Takuji Shimmura

Sensual and multi-directional, the building is located at a pivotal point between the Mail Picasso and the new neighborhood currently being developed alongside the rail infrastructure. Framing and capturing the existing location, New’R embraces the site and forms a new landscape. 

Project: New’R building
Location: ZAC EuroNantes Gare, Nantes
Dates: Competition winners 2013, Completed in January 2017
Program: 156 apartments + offices + commercial + parking
Developer: Kaufman&Broad
Architect: Hamonic+Masson & Associés
Project manager: Arnaud Grenié
Structural engineer: BETAP
MEP engineer: ALBDO
Site management: Polytec
Urban planner: Atelier Ruelle
Building area: 10,350 sm
Construction costs: 13,5M€ excl. tax
Environmental certification: RT 2012 

Photo © Takuji Shimmura

The building’s volume complements the surrounding scales through its sculpted effect. The construction of intermediate landings creates a sequence within the volume and the piston-like morphology facilitates a graduated system of high-rise living. Its strategic position and impact on the site offer a range of interpretations depending on one’s proximity to the building, evoking multiple responses and sensations.

A range of detail on the skyline creates variation in form and invites a number of uses of the various roof terraces. This enables neighboring local residents to appreciate the building’s different scales from a distance whilst also providing diversity and variety for the inhabitants. The design plays on the idea of movement, backgrounds and multiplicity. 

Photo © Takuji Shimmura

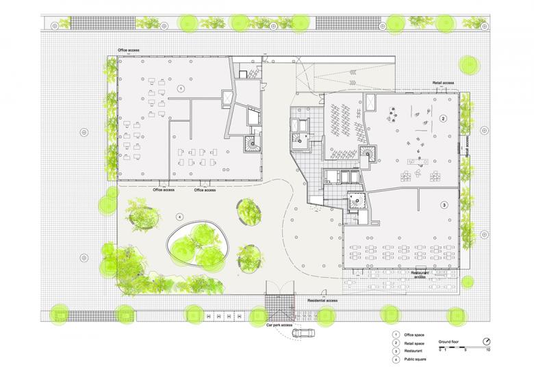
A building connected to the ground
The question of public space and its extension through the project was a prerequisite and is a condition that will not only invite different activities and interactions, but also establish a strong link between the shared, public space of the road and the building.

The city’s flow of pedestrians, cars and bicycles and the mixed program (parking, retail, office space and housing) interweave and embellish the ground floor, creating a “pedestrian level volume.” The building’s transparency, depth and various perspectives engender a dynamism and liveliness around the perimeter of the project, consequently enriching the surrounding environment. 

Photo © Takuji Shimmura

Above all, this is a residential project
Housing constitutes 80% of the city. It’s a bit like water for the human body. We must therefore make this 80% exceptional, as the life and richness of a city are its inhabitants. We have provided diversity within the collective by creating multiple exterior spaces and apartments with a range of typologies. There are forty differing typologies for 156 apartments, meaning the repetition inherently found in housing projects is offset by the tower’s uniqueness, which seeks to provide a sense of belonging and identity.

Plant containers are built into the balcony railings of the apartments situated on the lower floors. These flowering baskets allow dwellers to tend aromatic plants and flowers of their choice, whilst the higher floors, above any obstructed views, have balconies that become large panoramic screens.

​Conviviality must be present in order to ensure optimum living conditions. Two shared terraces have been designed to allow neighbors the possibility to come together and create a shared future. For example a vegetable garden and a greenhouse are integrated into the 10th floor terrace. The organization ‘Bio-T-full’ provide around thirty workshops offering residents the opportunity to participate in group activities, such as the planting and growing of crops. Furthermore, a vast solarium on the sixteenth floor allows residents to organize birthday parties, soirées and other events. 

Photo © Takuji Shimmura

This building is an observation tower
The intermediate height of the building carries a pedagogical virtue. Living here enables people to understand and appreciate the city that surrounds them: architecture in cinemascope.

Photo © Takuji Shimmura

Finally, this building is a manifesto
Architecture is not a question of systems or profitability, but rather beauty and pleasure. We must rediscover the freedom to experiment with style, materials and typology. Aesthetic values, meaning those which relate to art and beauty, must be reconsidered in order to create ethical, modern and democratic projects.

Photo © Takuji Shimmura
Photo © Takuji Shimmura
Photo © Takuji Shimmura
Photo © Takuji Shimmura
Drawing: Hamonic+Masson
Drawing: Hamonic+Masson
Site Plan (Drawing: Hamonic+Masson)
Ground Floor Plan (Drawing: Hamonic+Masson)
Fourth Floor Plan (Drawing: Hamonic+Masson)
Tenth Floor Plan (Drawing: Hamonic+Masson)

Other articles in this category