Nexxus Shanghai
Some may question why a city like Shanghai — which only began its large-scale urbanization in the 1990s and is still undergoing rapid growth — needs to be concerned about regeneration.
Client: Sandhill
Location: Xizang North Road, Huangpu District, Shanghai, China
Size: 10,000 m2
Architect: AIM Architecture
- Design Principals: Wendy Saunders & Vincent de Graaf
- Project Architect: Vincent Zhou, Javier Paz Taibo
- Project Management: Lisa Ngan
- Design Team: Jiao Yan, Jin Kang, Shirley Woo, Sophia Wang
- FF&E Team: Sowon Lee, Baoer Wang
Regeneration is the tool that cities use to challenge their deficiencies, correct their missteps, and remake themselves. Beyond this, as any city grows, its needs to — like any living thing — necessarily change. It is a constant process.
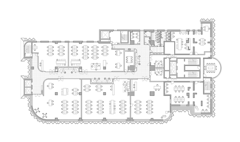
AIM’s projects usually start from within, also here, where we created a hybrid work landscape with shared functions and a commercial ground floor that adds amenities to work landscape.
But in this case, very quickly the focus moves to the outside. How should this building interact with its surroundings? Can this building stand out in a sea of sameness? And can the façade contribute to its interior environment so it’s not just a cosmetic intervention?
Located on a fast-paced busy road, we wanted to make use of this movement by making a façade that changes depending on what side you are approaching it from. A zigzag façade with different glass colors and different transparencies changes the image of the building when you pass by. Approached from the north, the building is very transparent, and while you drive past, the façade starts to ‘close’ as you see the metallic copper printed glass more or vice versa.
Adding a second skin to the building, allowed us to renovate with some of the existing tenants in. It greatly reduces the roads noise impact, and with the zigzag-shaped façade, we can reduce sun impact and heat gain from the south, while offering clear views towards the north.
A bonus is the play of glass and trees through reflection. We printed the typical Shanghai platane leaves on the south-facing glass, creating a blend of trees, glass and sky multiplied through this faceted façade. All coming together as a façade that moves as you move.
Related articles
-
-
-
Spaces for Cars – And for People
Kennedy & Violich Architecture, Ltd. (KVA) | 02.03.2026
















