Pingtung Public Library

MAYU architects | 18. August 2022
Photo: Yuchen Chao Photography (All images courtesy of v2com)
Project: Pingtung Public Library (extension and renovation), 2020
Location: No. 69, Dalian Road, Pingtung City, Taiwan
Architect: MAYU architects
Construction Materials: Steel & Reinforced Concrete
Site Area: 59,290 m2
Total Floor Area: 8,596 m2
Number of Stories: 6 + 1 (basement)
Photo: Yuchen Chao Photography

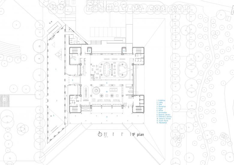
At the urban scale, a transparent new lobby is proposed and attached to the western side of the existing building. It turns the architectural axis and approach 90 degrees in order to make the library face the city directly. Instead of arriving through a series of formal boulevards and plazas, the new approach guides visitors through the forest and arcades before entering the library. Therefore, the architecture is more attuned to the physical and psychological conditions of contemporary library readers.

Photo: Yuchen Chao Photography
Photo: Yuchen Chao Photography

The new lobby consists of a parallelogram plan, and is supported by a continuous V-shaped steel structure. Several “activity Islands” are arranged, including a sunken seating area, a floating mezzanine, and a pair of suspended lanterns. The expanded glass curtain walls link the interior to the exterior, revealing the activities of the library to the city, and vice versa.

Photo: Yuchen Chao Photography
Photo: Yuchen Chao Photography

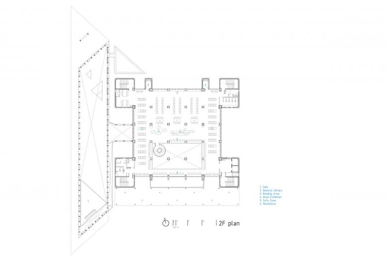
At the architectural scale, by transforming the original entrance lobby into a wooden reading room, and its three levels of compact book storage into a bright, multi-functional atrium, the originally fragmented and congested building becomes fluid and identifiable. Two distinct staircases, one spiral and one stair-seating, complete the reader’s circulation path, while providing various seating types and opportunities along the journey. Taking advantage of surrounding park views, an open floor plan, and natural materiality, the library programming and furniture deployments can achieve individuality, flexibility, and a sense of intimacy that are important characteristics of contemporary libraries.

Photo: Yuchen Chao Photography
Photo: Yuchen Chao Photography

The exterior of the original structure is now clad in white aluminum panels and louvers. An arcade extends from the original entrance to function as an in-between space between the reading room and the lawn, which was transformed from the depleted entrance plaza. The new landscape design connects the library seamlessly to its surrounding park, inviting citizens to use this new public space regardless of their purpose.

Photo: Yuchen Chao Photography
Photo: Yuchen Chao Photography
Drawing: MAYU architects
Drawing: MAYU architects
Drawing: MAYU architects
Drawing: MAYU architects
Drawing: MAYU architects
Drawing: MAYU architects
Drawing: MAYU architects
Drawing: MAYU architects
Drawing: MAYU architects

Other articles in this category