Civic Architects & Bright Urban Futures
Piushaven Harbour Pavilion
With the start of 2018, a new iconic structure was opened to the public in Tilburg, Netherlands. The structure forms a public pavilion on the central pier in the old city harbour and serves as a landmark for recreational boats and yachts, visiting the city. The firms Civic Architects & Bright Urban Futures designed a striking steel structure that unites the public viewing platform and the restaurant, adding a piece of sturdy architecture to the harbour vista.
Name: Piushaven Harbour Pavilion, 2017
Location: Hopliedenkade, Tilburg, Netherlands
Client: Orion Projectontwikkeling, The City of Tilburg
Civic Architects: Jan Lebbink, Rick ten Doeschate, Ingrid van der Heijden, Gert Kwekkeboom, Fernanda Romeu, Angela Solis, Niels Boswinkel
Bright Urban Futures: Gerjan Streng
Consultants: Archimedes Bouwadvies, BAM Bouw en Techniek, Janssen Lastechnieken
Floor Area: 260 m2
Elevated public space
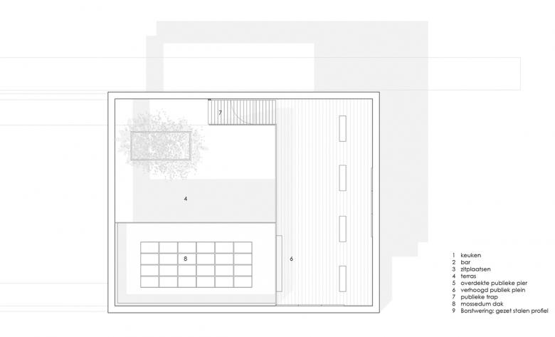
The structure facilitates a special combination of public and private activities on a unique site in the city. The central pier in the harbour was built for grain transhipment in the early 20th century, but became a place for public events and leisure activities, in more recent times. Today it has been transformed into a place where the restaurant RAK shares space with a public plateau that also covers the public space on the pier. The structure benefits from the qualities of the pier in various ways: The restaurant is positioned close to the water and offers visitors a beautiful view, while keeping 2/3 of the plot area open for public use. The roof structure also provides for the viewing deck, and acts as a shelter for the rain. As a result, events and leisure activities can take place in various ways.
A contextual icon
The design of the iconic pavilion is rooted in the historic harbour and its characteristic atmosphere: The inert black cargo ships and the robust bridges form a set of iconic attributes in the harbour park. The straightforward shape, the robust structure, the matte black façades and the combination of steel and wood are magnifications of the site and its surroundings. The shape and details of the structural platform were a result of an integrated design process, where several needs were combined in one architectural element: from floor separations to sun protection. The pavilion thus becomes a simple and self-evident iconic part of the public space in the Piushaven Harbour.
Solid structural architecture
The heavy roof edge forms an integral solution for the engineering of the structural system: in order not to affect the historic wooden foundation of the quay, the columns are positioned inwards, with two meters distance. The overhangs are accommodated by constructing the viewing deck’s solid steel balustrades as structural beams which also carry the floor of the deck. Fixed structural joints and the absence of stability walls ensure a free floor plan layout, while the oversized structure allows for high intensity public use of the deck. The structure is the architecture and thus forms a powerful addition to the Piushaven harbour, built to last.











