Premier Office

Tropical Space | 12. June 2023
Photo: Trieu Chien (All images courtesy of v2com)
Project: Premier Office, 2022
Location: Tan Binh District, Ho Chi Minh City, Viet Nam
Architect: Tropical Space
Structural Engineer: Bach Ngoc Hoang
MEP Engineer: QCONS
Construction: Starcon company
Site Area: 200 m2
Building Area: 300 m2
Photo: Trieu Chien

The design team aspired to create a building that can maximize the performance of natural lighting without being affected by the negative impact of direct sunlight. The door and window system can be opened when the weather is good.

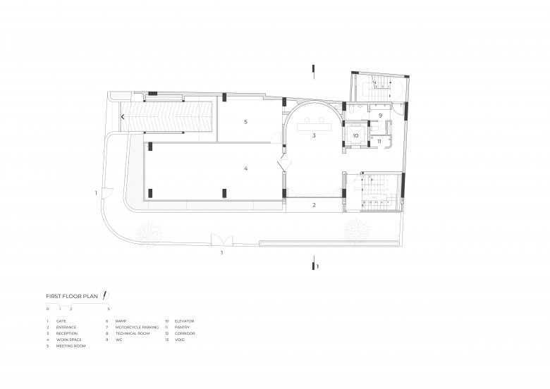
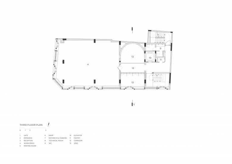
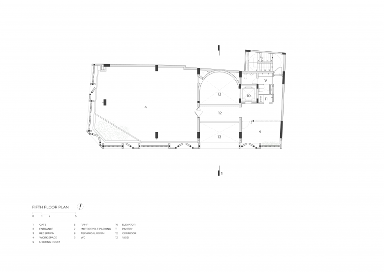
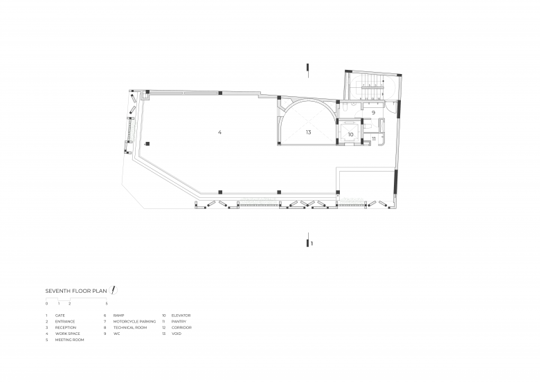
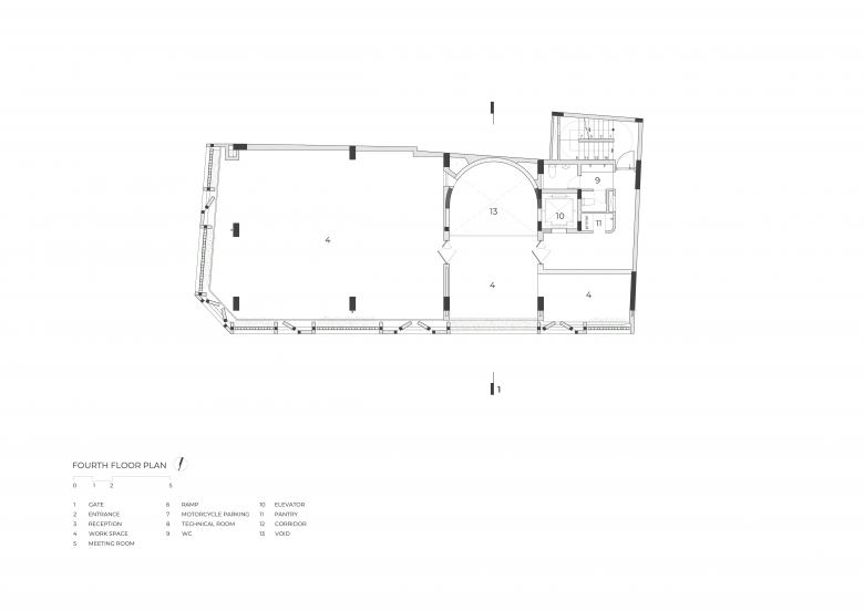
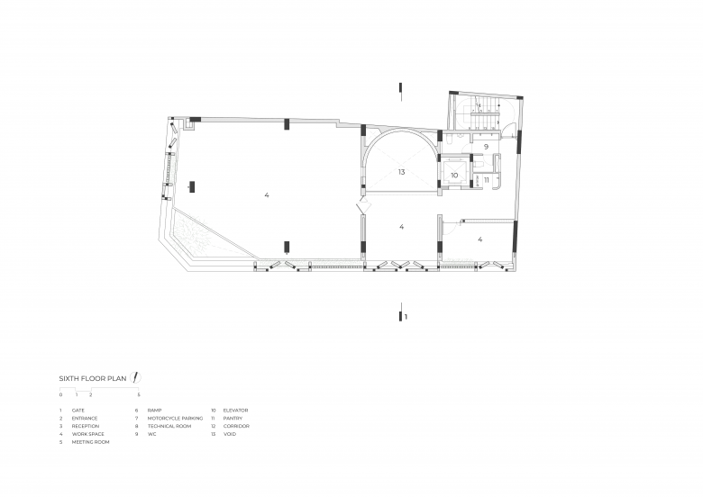
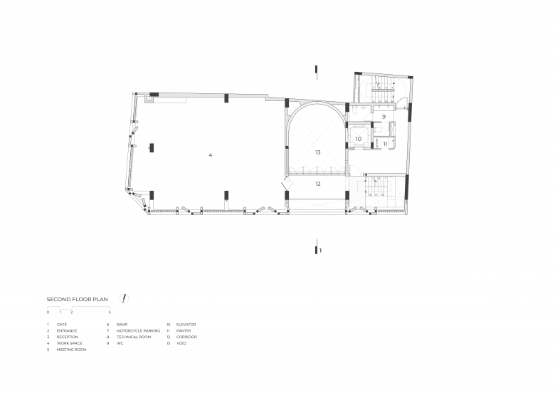
The building is covered by brick walls with a concrete structure. The functional areas are divided by a continuous vertical void in the centre, which helps natural light and airflow going throughout the building.

Photo: Trieu Chien

One side of the central void is the office space, with two facades opening to catch the sunlight and wind. The other side accommodates the restroom, storage, elevator, and stairs. These two blocks are connected by corridors spanning the void. By connecting the void between the corridors and empty spaces, both vertically and horizontally, the building can create moving light areas and space displacement during the day.

Photo: Trieu Chien

Many consider the office as a second home where they spend most of their time during the day. To inspire people working there, the architect endeavored to design an interesting space filled with natural light and ventilation by having a double-layer with a unique “brick curtain” outside, and aluminum sliding glass doors inside.

Photo: Trieu Chien

The perforated brick wall structure rotates at a 45-degree angle to create a buffer layer that reduces the impact of sunlight and creates moving shadows. The buffer layer, with trees interweaving, contributes to purifying the air and stopping direct sunlight from entering the workspace.

Photo: Trieu Chien

The Premier Office has two opening facades that allow it to make use of natural light and ventilation in order to reduce energy consumption for lighting and cooling the space.

Meanwhile, empty spaces, trees, light, brick, and even rain can create an openness, stimulate creativity, and regenerate the energy of those working there.

Photo: Trieu Chien

With the perforated brick shell, the rotated wall, and the gaps, the Premier Office does not have the feeling of invading the urban space. Bringing an old material like a brick into the project makes the newly built building blend into the neighborhood itself.

Photo: Trieu Chien
First Floor Plan (Drawing: Tropical Space)
Second Floor Plan (Drawing: Tropical Space)
Third Floor Plan (Drawing: Tropical Space)
Fourth Floor Plan (Drawing: Tropical Space)
Fifth Floor Plan (Drawing: Tropical Space)
Sixth Floor Plan (Drawing: Tropical Space)
Seventh Floor Plan (Drawing: Tropical Space)
Building Section (Drawing: Tropical Space)

Other articles in this category