World Building of the Week
Ts VEIL
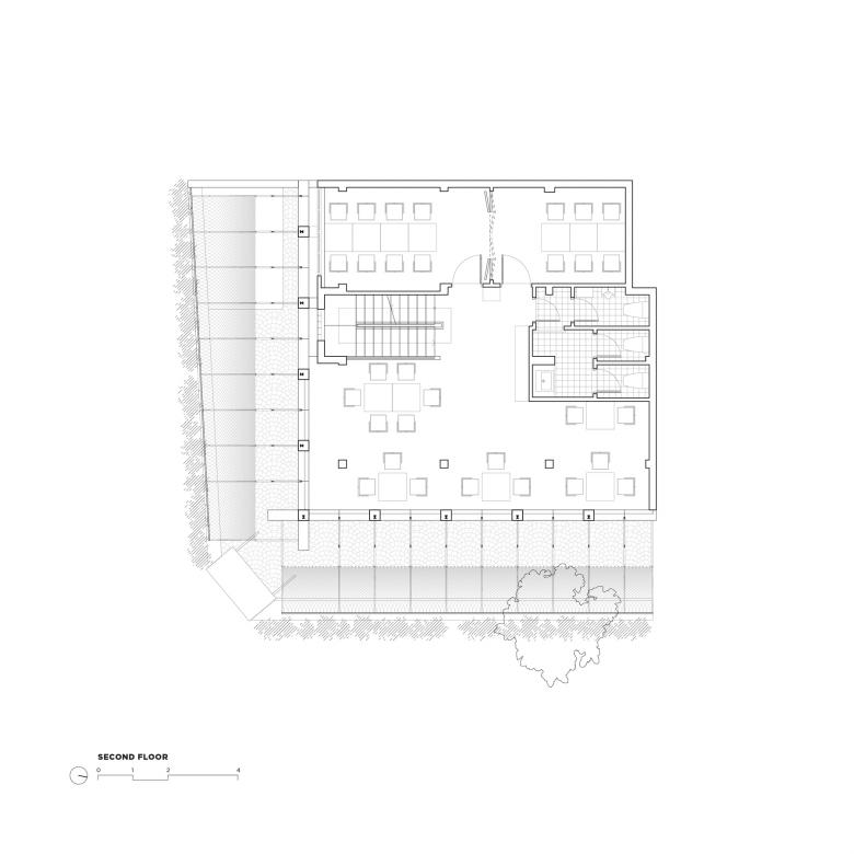
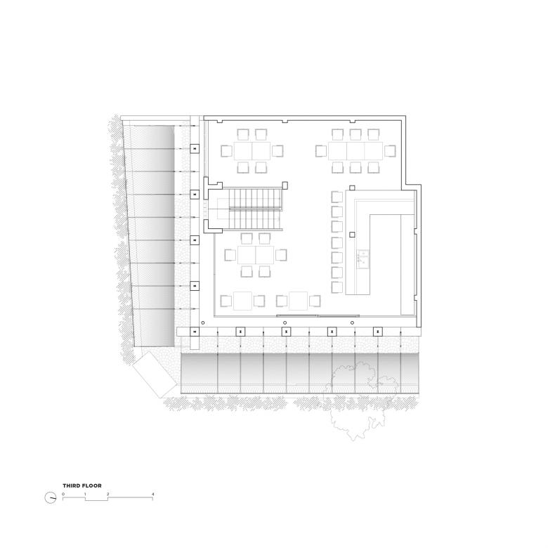
The aptly named Ts VEIL is a social dining space in Ho Chi Minh City spread across three floors behind a draped metal mesh facade. Sitting on a corner parcel in a dense neighborhood, the facade veils a structure that is an assemblage of new and old. Architect Khoa Vu answered a few questions about his studio's design of the project.
What were the circumstances of receiving this commission?Ts VEIL began as a direct commission from a client who acquired an aging villa in District 2, Ho Chi Minh City, with the intention of converting it into a social dining destination. While the original idea was to demolish and rebuild, Studio KHOA VU proposed an alternative vision: to retain and adapt the existing structure, offering both environmental and architectural value. This decision shaped the direction of the project from the start, positioning the design as an experiment in lightweight transformation, climate responsiveness, and typological rethinking within a tight urban site.
Ts VEIL is unique in its layered architectural approach, a renovation that avoids spectacle and instead introduces subtle, radical shifts in how a building breathes, shades, and connects with its surroundings. The dual-skin system—a porous veil of expanded metal mesh and a raw, restructured interior—responds to climate, urban edge, and public/private thresholds all at once. It’s also one of few projects in the area to incorporate a mist-cooling system integrated into the facade, enabling a passive microclimate strategy in an otherwise densely built tropical context.
The design is inspired by the notion of a veil—not as a decorative surface, but as a breathable boundary that mediates light, air, privacy, and openness. This metaphor guided both the physical form and the environmental performance of the building. The studio was also interested in how subtle shifts in materiality and porosity could redefine the relationship between interior space and public street, echoing the blended thresholds found in vernacular Southeast Asian architecture, but expressed in a refined, modern language.
The site, on a tight, turning corner in a lively mixed-use neighborhood, had a major impact on the building’s form and openness. Instead of enclosing the program, the design peels open at the corner, allowing the veil to drape out toward the street and form a welcoming, shaded threshold. The veil acts as a filter between the dense, noisy street and the intimate interior, creating a moment of soft urban inflection. The surrounding buildings also influenced the use of light-filtering materials and horizontal layering.
While the client initially envisioned a full rebuild, they were receptive to Studio KHOA VU’s proposition to retain the structure and reimagine it through architectural layering. The future use as a social dining space encouraged an open-plan layout, natural ventilation, and a sense of permeability between the public realm and interior. The client’s trust allowed for material experimentation and for the building to become both a neighborhood gesture and a quiet retreat.
Ts VEIL reflects studio KHOA VU’s core interest in typological rethinking, material honesty, and spatial ambiguity. Like other projects in the studio’s portfolio, it explores how lightweight architectural interventions can revive existing structures with minimal footprint and maximum atmospheric effect. It shares conceptual DNA with research on tropical vernacular strategies, but translates them into contemporary expressions—bridging climate, culture, and construction. Ts VEIL marks a pivotal moment in the studio’s evolution: a built manifesto of reuse, restraint, and reimagined thresholds.
Email interview conducted by John Hill.
Location: Ho Chi Minh City, Vietnam
Client: Rehab Station Social Dining
Architect: KHOA VU, New York
- Design Principal: Khoa Vu
- Project Architect: Anh Ta
- Project Manager: Tuan Trang
Contractor: Pham Gia Technology Co., Ltd
Site Area: 165 m2
Building Area: 300m2
Important Manufacturers / Products:
- Galvanized Expanded Metal Wire Mesh: Inosteel Co., Ltd
- Oak Wood Gates: An Cường Wood Working JSC
- Basalt Cubic Stone: Dai Gia Phuc Co., Ltd
- Cloud Glass Block: Dong Tam Group



























