Stendardo Menningen Architectes
Recreational Community Center Le Lignon
The newly constructed recreational center known as "Jardin Robinson" occupies a strategic position surrounded by the wooded banks of the Rhone on one side and the public facilities of the Lignon district with an emblematic expression of a 1960s concrete on the other side.
Project: Recreational Community Center Le Lignon, 2018
Location: Le Lignon, Geneva, Switzerland
Client: City of Vernier
Architect: Stendardo Menningen
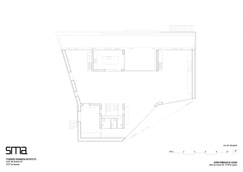
The building is located on a steep slope between the Lignon school and a pedestrian path leading to the banks of the Rhone. This position required the design and construction of a new access ramp located at the main entrance of the building for ease of accessibility.
The project proposed a folded volume in response to its context as well as mobility requirements in the vicinity. The building was designed to integrate transparency and visual openings with its surrounding environment. The external plants and vegetation are internalized with the large glass facades. The building designed for public utility expresses a strong identity by privileging the relationship between the exterior and interior landscape.
The program distribution is qualified by the use of mobile partitions allowing a flexibility of use according to the multiple activities of the users. The main area of the activity rooms has a kitchen with access to the loggia. A core area pierced by four windows allows visual control between the play areas of the children, the mezzanine, the workshop, the entrance and the administration office.
The oak façades are composed of oblique blades reinterpreting the play of trees structuring the site. The roof, accessible from the outside, hosts thirty urban vegetable gardens and a fountain. It is conceived as a real meeting place nestled in the middle of the treetops.
















