i29 interior architects

Room On The Roof

i29 interior architects | 26. January 2015
Photo: Ewout Huibers

Together with the Rijksmuseum in Amsterdam, de Bijenkorf has invited national and international artists to work on their projects in the studio, ranging from performances, poetry and light art to dance, music, film and photography.

Photo: Ewout Huibers

Room On The Roof is fully equipped for the artists, with a telescope for enjoying panoramic views of the city, a bed for dreaming, a special menu for meals, and its Dam Square location providing a source of inspiration. The works resulting from time spent in Room On The Roof will be shared with the public. This could be through an exhibition in the store windows, an online live performance or an installation in or around de Bijenkorf. The program will also be tailored to major events taking place in Amsterdam and involve collaborations with cultural institutions across the Netherlands.

Photo: Ewout Huibers

Rijksmuseum
For the first two years of the project, the Rijksmuseum will be the cultural partner of Room On The Roof. According to Business Director Erik van Ginkel, “Both the Rijksmuseum and de Bijenkorf have a rich history when it comes to being a source of inspiration and creativity. That’s why we support Room On The Roof where artists, designers and writers are given the opportunity to fully focus on their art.”

In addition to Van Ginkel, de Bijenkorf has also brought in Julius Vermeulen, Art & Design Consultant at TNT, and Jane Withers, Design Consultant and Curator, as external consultants.

Photo: Ewout Huibers

De Bijenkorf and Arts & Culture
Since it was founded in 1870, de Bijenkorf has had a clear vision of retail and a strong affiliation with art. Through the course of the 20th century, a special bond has been forged with architects, writers, designers and artists. Where art and business overlap is now an essential component of the de Bijenkorf strategy.
Caroline Krouwels, Head of Creative at de Bijenkorf explains, “De Bijenkorf integrates retail, art, culture and design in order to surprise and inspire customers. The tower is a prominent architectural component of the building on Dam Square and, with The Room On The Roof, it will also come to symbolize the creative innovation of de Bijenkorf.”

Photo: Ewout Huibers

Design i29 interior architects
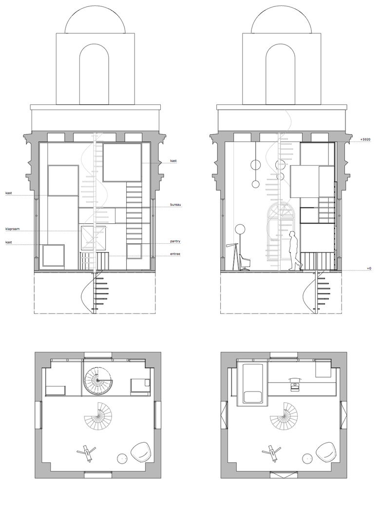
The interior of the tower is designed by i29 interior architects. Room On The Roof wants to offer the artist a unique experience. This was the starting point for i29 to realize an installation that brings together two worlds in one space; playing with scale and perception as in the universe of ‘Alice in Wonderland’. On one side a vertical installation of wooden volumes from floor to ceiling is placed, the other side is a full white space. The wooden installation includes a pantry, storage, desk and daybed. The functions have been stacked on top of each other as a kind of ‘living cabinet’ in order to experience the tower on different levels. Via small ladders you can climb up in the cabinet. Each level gives a new perspective and view to the outside world. All accessories like a telescope, armchair and lamps, are just like the space itself all white to make a contrast with the wooden volume. The monumental spiral stairs leading to the cupola has been restored and adds to the fairytale-like atmosphere.

Photo: Ewout Huibers
Photo: Ewout Huibers
Photo: Ewout Huibers
Photo: Ewout Huibers

PROJECT CREDITS

Client: De Bijenkorf
Design: i29 interior architects
Photos: Ewout Huibers
Builder: Fiction Factory

Building sections and floor plans. Drawings: i29 interior architects

Other articles in this category