Moriyama & Teshima, Montgomery Sisam
Sheridan College Hazel McCallion Campus Phase 2
Designed by Moriyama & Teshima Montgomery Sisam, Architects in Joint Venture, the Sheridan College Hazel McCallion Campus Phase 2 (HMC2) opened in January 2017 as the second building on Sheridan’s newest campus.
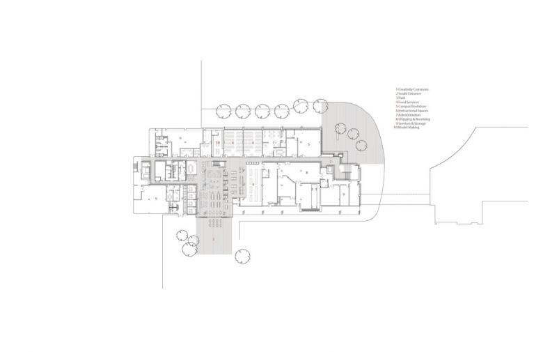
Accommodating an additional 3200 full-time students, HMC2 combines state-of-the-art formal and informal learning spaces to become an incubator for invention and applied creativity. Architectural interest is found in the complex sectional character of the building achieved by intersecting a porous inner bar with a variety of public spaces below.
Location: Mississauga, ON
Client: Sheridan College
Architects: Moriyama & Teshima, Montgomery Sisam (Joint Venture)
Consultants:
Structural, Sustainability and Building Envelope: Halsall Associates
Mechanical, Electrical, IT, AV and Energy Modelling: MCW Consultants
Civil: Counterpoint Engineering
Acoustics: Valcoustics Canada
Accessibility: DesignABLE Environments
Traffic and Transportation Planning: BA Consulting Group
Security: Lobo Consulting Services
Signage & Wayfinding: Entro Communications
Constructor: Bondfield Construction Company Ltd.
Size: 223,000 sq ft.
Experience
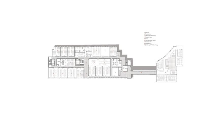
The sequence of discovery begins in the Creativity Commons, a double-height atrium around which series’ of learning spaces gravitate—research, training and leadership centres, maker spaces, meeting rooms, technology-enabled classrooms, food services, a gallery, and bookstore. A feature scissor stair, escalating 5 storeys through the atrium, connects these spaces visually and physically with the Commons and projects their energy and animation upwards. As users ascend and circulate, their experience of the building changes. Openings have been staggered and site lines curated to provide natural light and views across the floorplate, down into the atrium and or out to the new quad.
Related articles
-
-
Allied Music Centre/Massey Hall Renovation and Expansion
KPMB Architects | 01.12.2025 -













