Kurz Architects

SinnerSchrader Studio Prague

Kurz Architects | 25. October 2018
Photo: BoysPlayNice

Project: SinnerSchrader Studio Prague, 2018
Location: Prague, Czech Republic
Client: SinnerSchrader Praha s.r.o.
Architect: Kurz Architects
Floor Area: 700m2 office, 200m2 terrace
Photos: BoysPlayNice

Photo: BoysPlayNice

Kurz Architects designed a new office space in an old industrial building. Both the architects and the German digital agency combined the ideas of interior and digital architectures. Throughout the course of half a year, they used agile processes to plan, build and create a space for 60 digital workers. With a fixed budget and timing, the scope of the solution as constantly reprioritized and iterated upon — in an open, joyful and proactive manner. Trust and willingness to execute stood in the foreground of the collaboration. Elements like building blocks, frameworks and a strict design system were the common ground between the worlds of the architects and the digital agency; orbiting around these fostered their joint journey.

Photo: BoysPlayNice

The space emits calm, clarity, strength and transparency. It focuses on the human, not on company hierarchies or impressing others. It's a home for SinnerSchrader. The studio space meets the agency's obsession with informal exchange across all disciplines, providing plenty of communication areas — whether in translucent meeting cubes, the large kitchen space, hanging chairs or focus areas.

Photo: BoysPlayNice

The studio is structured according to the needs of individual teams. Diversity can be found all around the studio, achieved by using a range of materials: from Marmoleum, zinc-coated metal sheets and polycarbonate boards to woolen carpets and plywood, highlighted by the combination of old and new Czech furniture designs.

Photo: BoysPlayNice

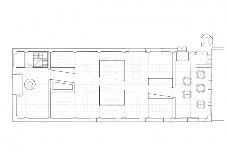
The connecting element and main motif of the studio is the diagonal axis which acts as the main corridor, a skate park and route that gradually opens all elements and spaces in an unpredictable and surprising fashion. This axis, which starts at the main entrance and ends at the open terrace, lends a dynamic to the entire space, connecting the individuals and teams.

Photo: BoysPlayNice
Photo: BoysPlayNice
Photo: BoysPlayNice
Photo: BoysPlayNice
Photo: BoysPlayNice
Photo: BoysPlayNice
Plan (Drawing: Kurz Architects)
Section (Drawing: Kurz Architects)

Other articles in this category