ELLENA MEHL Architects

SPE House Extension

ELLENA MEHL Architects | 15. May 2017
Photo: Hervé Ellena (All images courtesy of v2com)

Built on the side of a hill, the landscape follows horizontal lines, formed by terraced gardens and stone walls also called "restanques" in the south of France. Although built less than 40 years ago, the main house is typical of Provençal houses: rectangular, compact, and symmetrical with a stone framed entrance at the center, and with small windows and terracotta tiles.

Photo: Hervé Ellena

This is a landscape project. The extension is set within the existing terraced planes, between the main house and the stone walls, redefining new intersection lines in the landscape. The main level is connected at half level to the house using reshaped existing stairs. With wild grass covering the terraced roof, the addition merges in completely with the existing "restanques."

Photo: Hervé Ellena

The house extension consists of 3 intersecting planes: glass, stone and grass. Glass revealing the surrounding landscape, grass on the roof-garden, stones resembling the existing terraced walls. To achieve this minimal design, the architects have used plain 10 mm sheet steel to join the 3 planes vertically and horizontally. Inside the main room, the concrete roof is curved to follow the level lines and the slope.

Photo: Hervé Ellena

The extension consists of: 

  • A complete basement, connected to the main house kitchen with 2 cellars, boiler and solar heating room.
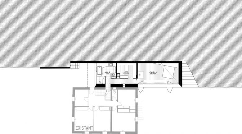
  • A master bedroom facing out on the landscape, a dressing room and bathroom looking out over the terraces.

Photo: Hervé Ellena

Main façade consist of a double glazed wall with single 10 mm toughened glass on the outside and standard glazing walls on the inside with a roller blind in between. Openings are on both glazed walls. The thermal summer comfort, though exposed to the south is optimal throughout the year, thanks to the double glazed wall and the half buried in the ground setting of the house.

Photo: Hervé Ellena
Photo: Hervé Ellena
Photo: Hervé Ellena
Floor Plan (Drawing: ELLENA MEHL Architects)
Section (Drawing: ELLENA MEHL Architects)
Detail on the double-glazed wall with steel frame (Drawing: ELLENA MEHL Architects)

Other articles in this category