FaulknerBrowns Architects
Sportcampus Zuiderpark
Located at the heart of the historic Zuiderpark, the €50m sports campus is an innovative collaboration of alliances between education, sport, sport science and the community, for both the municipality of The Hague and its private partners: the Haagse Hogeschool and ROC Mondriaan.
Project: Sportcampus Zuiderpark, 2017
Location: The Hague, Netherlands
Client: Municipality of The Hague, Haagse Hogeschool and ROC Mondriaan
Architect: FaulknerBrowns Architects
Executive Architect: ABT
Structural Engineer: ABT
Main Contractor: Ballast Nedam
Project Manager: Alphaplan
M&E Consultant: Deerns
Building Physics: ZRi
Area: 33,000m²
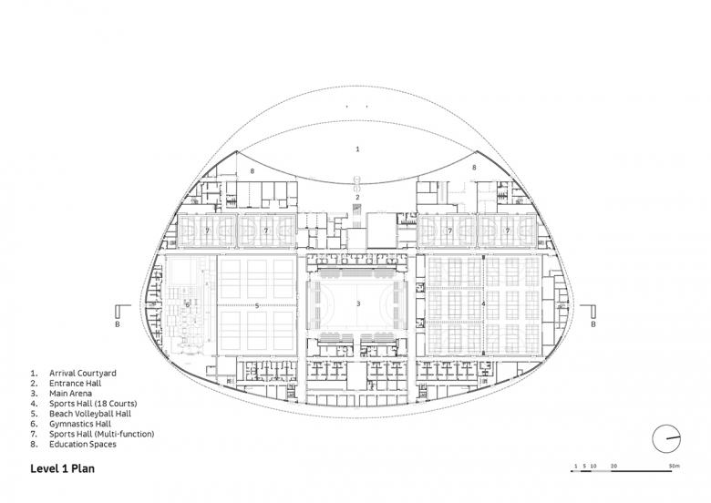
The overriding aim is to emphasize the importance of sport and exercise through learning and engagement, for the amateur as well as the elite athlete, using sport as the inspiration to deliver a healthier society. The 33,000m² sports campus includes a gymnastics hall, beach sports hall, spectator arena and a multi-purpose sports hall, as well as a variety of sports science and education spaces.
Motion and activity
Our design solution is an interpretation of the brief to embody within the campus the principles of 'motion and activity.' This is expressed externally in the fluid movement of the elevational treatment. At ground level, the curved form of the plan is expressed by a simple plinth constructed from textured precast concrete panels. The upper part of the elevation is expressed as a metallic 'ribbon' that narrows and twists to reveal glazing on the elevation. Constructed from brightly polished stainless steel, the dynamic ribbon changes colour with different lighting conditions and cloud patterns, as well as reflecting the animation of its natural setting.
Belonging in the Zuiderpark
As the Zuiderpark is listed as a 'national monument,' the building has been designed to preserve the unique character of its historic surroundings. The curved nature of the building creates the perception that the building’s edges are retreating into the distance, minimising its visual scale. The largest interior volumes—primarily the areas for sport— have been situated to the rear of the building allowing for the height to be reduced significantly at the front, where the majority of the education spaces are located. The high sided rear elevation has been positioned to respond directly to the urban city context, whilst the front elevation responds at a human scale to the public parkland. Here, an animated entrance courtyard acts as an extension to the park, creating a physical link between the campus and the main approach routes.
Centre of excellence for sport and movement
During the day the sports facilities are used for education by the Haagse Hogeschool (The Hague University of Applied Sciences) and ROC Mondriaan, and for performance training by a variety of elite sports organisations. During the evening and at weekends the facilities are made available to anyone wishing to engage in one of the many possible activities.
One of the distinctive facilities on offer at the sports campus is the beach sports hall which holds enough space for six beach volleyball courts or two beach soccer pitches. A specially configured water misting system maintains the sand at the ideal moisture level to prevent the propulsion of dust particles into the indoor environment. The elite standard facility is the permanent training location for the Netherlands Beach Volleyball Team and The Hague Beach Volleyball Team; these are two of many sports clubs and organisations that are based at the campus.
Legacy
Sportcampus Zuiderpark is much more than a centre of excellence for sport and movement. The integration of accessible spaces for education and recreational sport has created an environment which celebrates and promotes the value of sport for the health and wellbeing of all.
Capable of hosting a variety of international standard sporting events in the public heart of the city, the sport campus provides the inspiration to motivate people of all generations to participate in new activities in the footsteps of the athletes before them.
Building for the future
The municipality of The Hague has the ambition to be climate neutral by 2040. This informed the client’s desire for a sustainable campus.
The building is designed to be as compact as possible, whilst providing the necessary space for the range of sport and education facilities. When combined with a well-insulated shell, energy loss is therefore minimised. The 20,000m² roof is covered with over 15,000m² of heat-regulating green sedum, as well as photovoltaic solar panels to generate energy for the building and solar collectors to produce hot water for the showers. The energy generated by the roof is supplemented by a ground water heating and cooling system which utilises two wells excavated to different depths. In the summer when there is a demand for cooling, groundwater is pumped from the shallower ‘cold’ water well and fed through a heat exchanger to provide cooling for the building. Due to this energy transfer the water returns warmed and is fed back into the deeper 'warm' water well. In the winter the system is reversed to provide heating to the building.














