MoederscheimMoonen Architects
Sportpark Willem-Alexander
How can you make a motorway section attractive and functional for the local residents? This is the question MoederscheimMoonen Architects set to work on for the Municipality of Schiedam.
They devised a unique solution for a stretch of the A4 motorway between the Dutch cities of Delft and Schiedam. The result is wonderful green park and a new sports location that will definitely appeal to the imagination. Located some six metres above the motorway, the sports fields are enclosed by one of the largest canvases in Europe. Together with Lace Fence, the architects created no less than 8,500 m² of colourful fencing that consists of over 1.6 million life-like ‘pixels’.
Unique solution
Initially, the tunnel and the motorway formed a barrier between the two adjacent residential areas. But the new design has now achieved the opposite. By realising the park and sports fields on top of the tunnel itself, it has literally created new connections between the two residential areas. They offer an environment for everyone living in the area – young and old – to exercise and relax in.
Exercising above the motorway
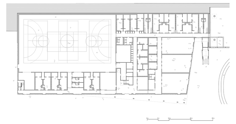
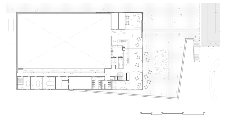
The complex and multidisciplinary nature of this assignment is reflected in the multiple use of space on top of and around the tunnel. The design features concrete canopy structures on both sides of the tunnel – creating a large enough surface area to realise sports fields on the roof of the tunnel section. Below these awnings, one finds space for car parks and an indoor athletics, baseball and cricket facility.
The main building is situated in the heart of the park, between the elevated sports fields. As such, it has a direct relationship with the surrounding athletic activity. The building houses a sports hall, changing rooms for various indoor and outdoor sports, rooms for dance and ballet and a large catering establishment with terrace seating. The terrace takes the shape of a plateau. ‘Hovering’ between the building’s different levels, it forms a transitional zone between the different street levels. The building’s overall design is characterised by the prominent expressive qualities of the fresh green roof and terrace awnings that emphasise the complex’s layered nature.
Largest canvas in Europe
The fields are enclosed by a screen that not only guarantees safety at the location but also mitigates the negative effects of the wind. For its design, the architects teamed up with the specialist firm Lace Fence, known for its innovative architectural woven fabrics. They jointly developed a new product consisting of colourful ‘pixels’, named Dedots. These pixels are far more than just a pragmatic solution: they lend the environment its own identity, with every square metre in the 1.2-km screen realised according to a unique design. This has resulted in a functional work of art that presents an exciting combination of transparency, permeability to air and imagination. It merges everything that the project is about: nature, sports, connections and energy.
PROJECT DETAILS
Architects
MoederscheimMoonen Architects
Location
Schiedam, Netherlands
Program
Sports hall, multi-purpose rooms, dance halls, canteen, indoor sprinting track, indoor baseball and cricket facilities, car parks
Architect in charge
Erik Moederscheim
Project team
Jim de Koning, Ruud Moonen, Fernando Polo Calvo, Sander Malschaert, Christiaan Harmse
Landscape design
BGSV Bureau voor stedenbouw en landschap
Fence design
Dedots
Structural engineering
CAE Nederland BV
Installation consultancy
IV Bouw BV
Main contractor for the building
Dura Vermeer Bouw Zuidwest BV
Contractor for the landscape
Van Kessel Sport en Cultuurtechniek BV
Client
Municipality of Schiedam, Netherlands
Surface area
16,000 m²
Photography
Ronald Tilleman and Dedots
Finalization of design
March 2015
Final acceptance
September 2016











