Orange Architects

The Cube

Orange Architects | 2. February 2016

PROJECT DETAILS

Project

The Cube

Location
Sin el Fil, Beirut, Lebanon

Client
Masharii SAL, Karim Jabbour

Design
Orange Architects

Team
Michiel Hofman, Patrick Meijers, Jeroen Schipper
 
Structural Engineer
Rodolphe Mattar

Contractor
K.Abboud

Quality control
Apave

Technical drawings
CBA Group

Size
5,600 m2

Dates
May 2011 – October 2015

Photography
Matthijs van Roon

Photo: Matthijs van Roon
Photo: Matthijs van Roon

The Cube is located on a prominently visible location on Plot 941 in Sin el Fil, an eastern district of Beirut, Lebanon. The concept of the 50 meter high tower is simple but extraordinarily effective: 'MAXIMIZE'; making optimal use of the client’s wishes, the site's potential, the local building code and the fantastic views on Beirut and the Mediterranean.

Photo: Matthijs van Roon

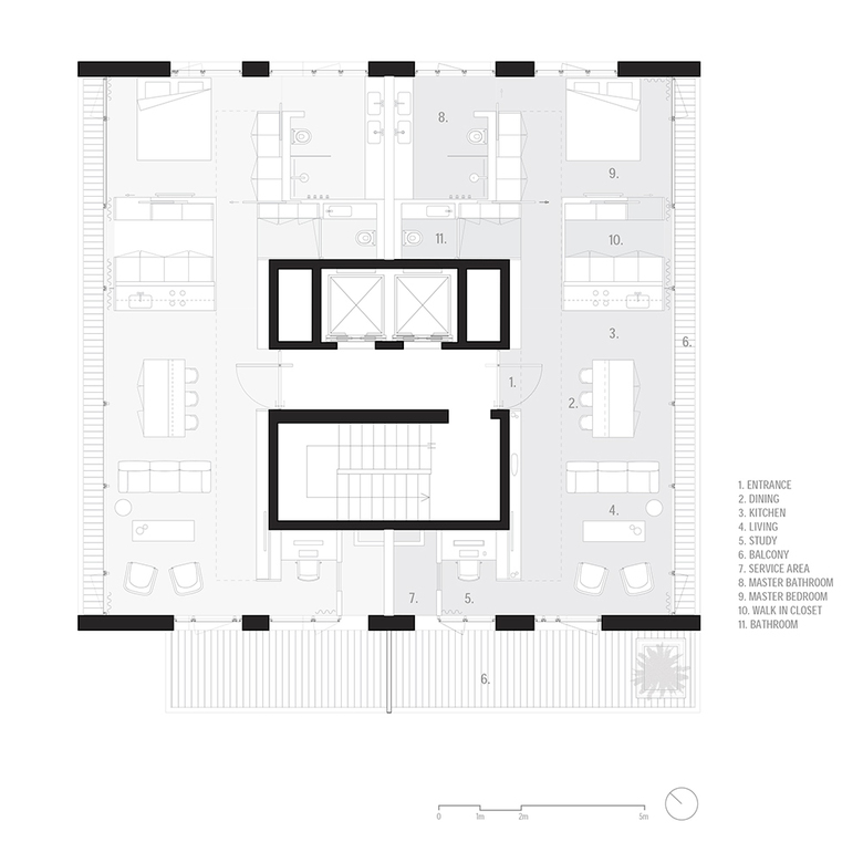
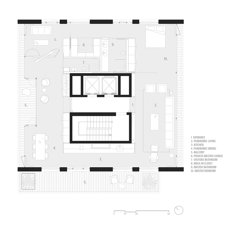
The Cube is presenting a whole new level to the concept of high-rise, or the architecture of towers. No extrusion of a singular floor plan, but a unique and iconic sculpture of individual villas, all with perfect views on the cityscape of Beirut. The rotation of the volumes on each level offers residents magnificent outdoor areas on the roof of the apartment below, as well as panoramic windows up to 12 meters wide. Each level consists of one or two apartments. The single apartments have the fabulous opportunity to enjoy Beirut from a 360 panorama.

Photo: Matthijs van Roon

The design with the 14 stacked and rotated floor plans generates 19 attractive apartments in total, ranging in size from 117 to 234 m², with fluid spaces, large balconies and wall to wall window frames. With its freestanding setting on the edge of the city both the view on the Cube itself and on central Beirut are unseen; the vibrant City is your personal wallpaper, day and night.

Photo: Matthijs van Roon

Thanks to the fixed core with lifts and staircases at the heart of the building, there are no constraints on the layout of the apartments. The floors run straight from the core to the facades, which are on each floor composed of two supporting concrete girders and two panoramic window frames, consequently rotated 90 degrees per level. Both the crossing girders and the core serve to stabilize the tower, an extra challenging task in a seismologically active area.

Photo: Matthijs van Roon

The white coated girder walls, which are perforated, strongly determine the appearance of both the exterior and the interior of the building. The parking garage is located underground in 3 layers and partly set into the adjacent hill. On the ground floor the recessed space for the lobby is covered by a spectacular cantilevering volume, creating a nicely covered place and marking the generous entrance of the Cube.

Photo: Matthijs van Roon
Concept Sketch (Drawing: © Orange Architects)
Construction Scheme (Drawing: © Orange Architects)
Northwest Elevation/Section (Drawing: © Orange Architects)
Southwest Elevation (Drawing: © Orange Architects)
Section (Drawing: © Orange Architects)
Section (Drawing: © Orange Architects)
7th Floor Plan (Drawing: © Orange Architects)
13th Floor Plan (Drawing: © Orange Architects)

PROJECT DETAILS

Project

The Cube

Location
Sin el Fil, Beirut, Lebanon

Client
Masharii SAL, Karim Jabbour

Design
Orange Architects

Team
Michiel Hofman, Patrick Meijers, Jeroen Schipper
 
Structural Engineer
Rodolphe Mattar

Contractor
K.Abboud

Quality control
Apave

Technical drawings
CBA Group

Size
5,600 m2

Dates
May 2011 – October 2015

Photography
Matthijs van Roon

Other articles in this category