Maître Carré, Architecture Open Form
The François-René Project
The François-René project, on Châteaubriand Avenue in Montreal’s Rosemont-Petite-Patrie neighbourhood, boasts six exceptional, thoroughly contemporary residences.
Montreal is in the midst of a condo boom, and developer Maître Carré has taken on the mission of bringing a creative and sustainable breath of fresh air to the industry.
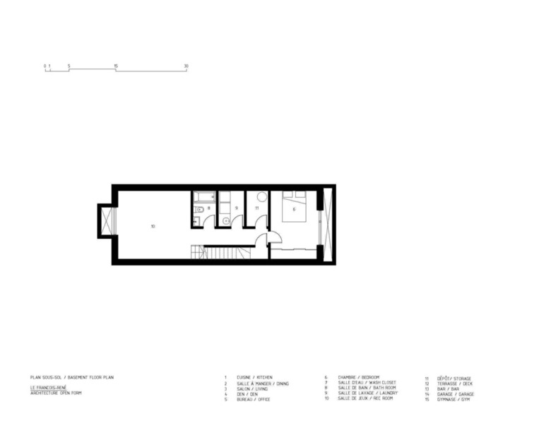
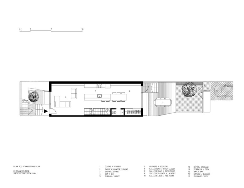
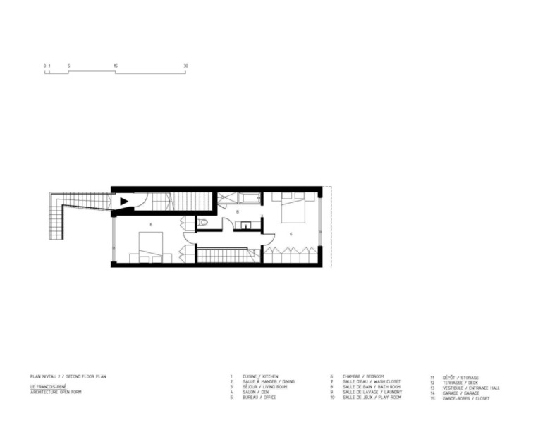
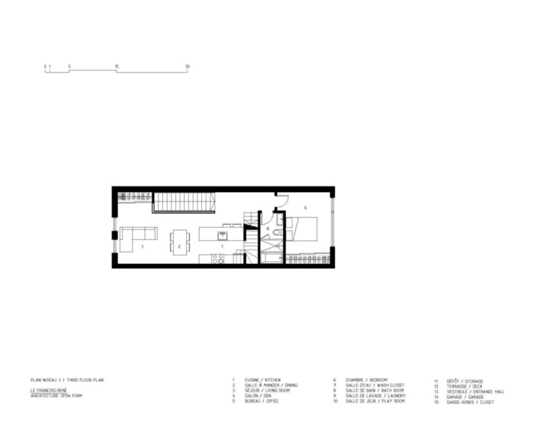
The project is set amidst a traditional streetscape of attached duplexes and triplexes. Standard zoning for the area would have allowed for two new triplexes. Maître Carré and Architecture Open Form broke away from that constraint and proposed a bold new solution. The result: three two-story townhouses with basements, topped by three condominiums each with a mezzanine and rooftop patio.
Urban comfort and a healthy environment
This multi-unit residential project meets the highest standards of construction quality and sustainability, giving young families a healthy and pleasant environment in the heart of the city.
Echoing the comfort of the suburban single-family home, each townhouse has a basement, a yard with a wooden deck and a lawn, shed and private parking space, all desirable but rare features in city homes. The units are also fully wired for an optional electric-vehicle charging station. Many steps were also taken to optimize energy efficiency and sustainability, so that the dwellings have Novoclimat 2.0 certification, indicating compliance with a high government-set standard.
To improve the comfort of each home while reducing energy costs, Maître Carré chose natural gas for appliances and heating, making the François-René the first Novoclimat 2.0-certified development to use that fuel.
Building a personality
Unlike today’s repetitive residential developments, often built on a tight budget, the François-René project was a playground for people with a deep passion for contemporary architecture, where creativity and originality were allowed plenty of room to flourish. Several exterior and interior details are custom-made, benefiting from an architectural approach and level of consideration usually reserved for single-family homes.
The façade reveals a strong desire to instil a contemporary character through the design of the brickwork and stairs. These two architectural elements succeeded in establishing their own personality, giving the project its unique character while complying with strict regulations designed to ensure consistency with Montreal’s built heritage.
The light grey-brown brick is tempered by a header layout, a creative way to break up the uniformity of the façade while preserving a streamlined style that complies with architectural codes. Instead of the ornamental wood of traditional cornices, there is a subtle arrangement of header bricks laid perpendicularly (with the short side showing) and slightly recessed. The same treatment gives variety to the windowless northern side of the building, which is highly visible from the street, where it is even possible to see the profile of the inside staircase. Lastly, with its inverse (protruding) layout the texture of the brick marks the boundary between the townhouses and the condominiums above.
The stairs, custom designed and built by the architects – a rare feature in multi-unit developments – include a 90-degree turn to make the most of the limited space available. As a result, each townhouse has a small front yard. The perforated aluminum railings are a contemporary alternative to wrought iron, and are designed to be suitable for climbing vegetation that provides vitality, privacy, natural air filtration and noise abatement.
Openness and privacy
The German-made triple-glazed windows provide both sonic and thermal insulation. While outside noise is not welcome inside, natural light is the guest of honour. The large, generous windows have a variety of shapes and are designed to optimize the amount of natural light that enters, enhancing the occupants’ well being. Sunken fences run the entire width of the building’s front and back, to give the basements a feeling of openness.
Condominium life generally comes with a sense of closeness and the sharing of common spaces. Not in the François-René project. Special attention was given to privacy, private property and the feeling of being at home. Each of the six units has its own entrance; there are no shared entryways. Each unit has its own deck or patio, separated by a wood wall. While the townhouse yards border on the back alley, the condominium patios are thoughtfully placed on the street side, giving each level its own private outdoor space.
Defying convention, Maître Carré and Architecture Open Form have created a multi-unit residential project that uses creativity to meet current standards and expectations for architecture and sustainability, providing a solution adapted to an urban generation in tune with its surroundings.
PROJECT DETAILS
Official name
Le François-René
Location
6537-6547 Avenue de Chateaubriand, Montreal
Architects
Architecture Open Form
Principal architect
Maurice Martel
Developer
Maître Carré
Interior designer
Chavi Linda Fillion Design
Engineer
Les Consultants LGL
Contractor
AMCC Inc.
Completed
June 2015
Cost of units
From CAD$395,000 for the condos and $610,000 for the townhouses.
Photographer
Adrien Williams
Related articles
-
-
-
Spaces for Cars – And for People
Kennedy & Violich Architecture, Ltd. (KVA) | 02.03.2026 -










