Damian Rogers Architecture
The Leaf House
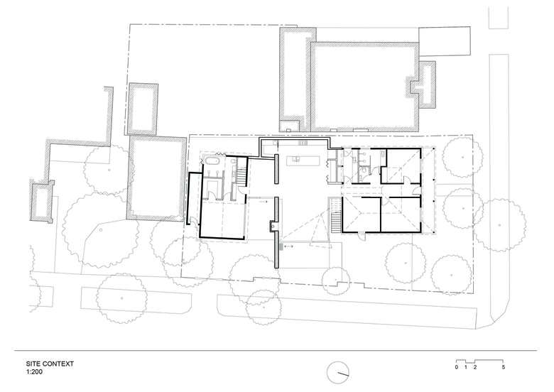
The bold form of the extension linking the two existing buildings, has been abstracted from the existing roof forms and respectfully acknowledges the heritage dwelling and streetscape.
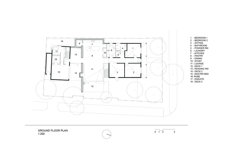
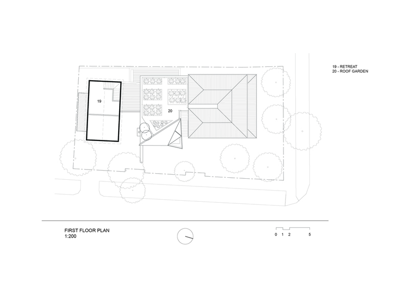
The play of sunlight filtered by the trees embraces the building as part of the landscape. The glazed roof floats as if it were a leaf on a tree branch and connects the interior to the external landscape, capturing views of the trees and sky. The dwelling will continually change with the landscape. The roof is utilized as an edible garden adding a deep intrinsic soul to the space, expanding the understanding of how a suburban dwelling can function and what it can give back. There is a harmonious warmth between the old and the new. It feels as though the building has evolved over time.
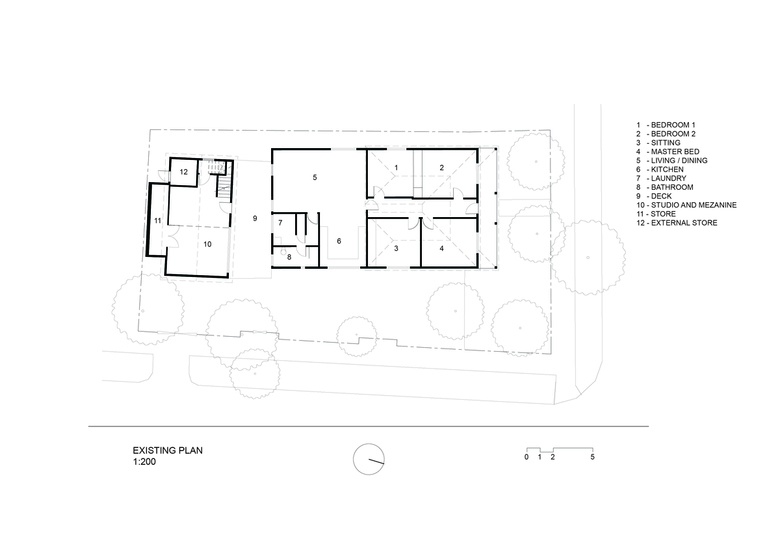
The brief was to provide a new living dining and kitchen space linking the existing house and studio while fully renovating both existing building. The client also wanted to have enough garden space to plant a vegetable garden.
The extension reconnects the dwelling with nature, from the play of sunlight filtered by the trees to the glazed roof which connects the interior to the external landscape. Inspired by the client to live sustainably, it was essential to give back to the landscape what would be lost. The roof is utilized as an edible garden adding a deep intrinsic soul to the space. The owners rarely buy vegetables these days. Beyond the building’s function it also seeks to inspire a lifestyle choice of sustainability through the connection and inspiration of its contextual landscape. The angled glass blurs the lines between the roof and walls, to continually enhance the visual connection with the garden at both levels. Reconnecting with nature will inspire sustainability.
PROJECT DETAILS
Location
Melbourne, Australia
Architect
Damian Rogers Architecture
Structural and Civil Engineer
Maurice Farrugia and Associates
Interior Decoration and Design
Resident Avenue
Builder
DuoBuilt
Size
250 m2
Related articles
-
-
The Three-Body Problem: Trapped in a Wave Sandwich
Eduard Kögel, Scenic Architecture Office | 13.04.2026 -
-













