Kwong Von Glinow Design Office

Towers within a Tower

Kwong Von Glinow Design Office | 20. June 2017
Infill Housing (All images courtesy of Kwong Von Glinow Design Office)

Team: Lap Chi Kwong, Alison Von Glinow, in collaboration with Kevin Lamyuktseung

Tower within a Tower

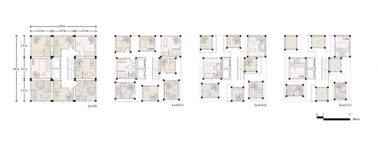
Our proposal “Towers within a Tower” for Pixel Housing is to bring Hong Kong’s urban verticality into the apartment unit itself. In our proposal, apartment spaces, typically inhabited as horizontal slices, are stacked one atop the other vertically. Each apartment unit therefore becomes its own tower. When the units aggregate next to one another, they produce shared outdoor spaces: a local neighborhood at every level. Read from both outside and within the tower, residents can lay the claim “That’s my tower.”

Rooftop Housing

While great variation can occur through these unit adjacencies, an economy of construction maintains three basic unit types: Studios of 32 m2, Single Bedrooms of 37m2, and Family Units of 42m2. Each of these unit towers are unique in their proportion, organization, and color, to serve the varying needs of each tenant type. 

Tower Apartment Units

Each tower unit is composed of prefabricated concrete elements, which, once assembled into boxes, can be easily mounted onto each other with cast-­in steel­-plate embeds. The concrete frame is clad with colorful ceramic tiles echoing the common construction material of residential towers in Hong Kong. The modularity of the system and minimal material weight allow for economic fabrication and flexible transport. This system can be aggregated across scales, from a four­-story rural housing unit to a tower in the city – each time adapting to different ratios of studios, single bedrooms, and family apartments. As a system, the tower unit produces a new typology of residential ­living, where daily life is framed within pixels. 

10x10x10 Stack
Plans
Resident Access
Circulation within
Slab Stack to Tower Stack
Village Housing
Development Housing

Other articles in this category