REST

A 'Mute Monument' in a Korean Garden

Pezo von Ellrichshausen | 9. March 2026
Photo © Pezo von Ellrichshausen
Photo © Pezo von Ellrichshausen

Cornered against a protected forest, on a gentle slope that overlooks a lush botanical garden, there is a bold infrastructure, a mute monument, almost without memory, function and scale. The building is meant to host culinary activities; from intimate, informal dines to large social events. 

Photo © Pezo von Ellrichshausen
Photo © Pezo von Ellrichshausen

Supported by a generous specialized kitchen totally buried underground, the building challenges the archetype of an open plan. With a regular formation of sixteen rectangular columns, given their exaggerated thickness, there is inhabitable space among and within each column. 

Lower Strata (Photo © Pezo von Ellrichshausen)
Lower Strata (Photo © Pezo von Ellrichshausen)

This open plan is explicitly characterized into three strata; the lower one, following the natural topography, with a covered amphitheater funneled towards the lower valley; the intermediate one, suspended under a thick platform, with a diagonal symmetry formed by open corner terraces at opposite ends; and the upper one, over the non-directional horizontal platform, with a panoramic view framed in multiple orientations by ten meters tall, obelisk-like, free-standing columns.

Intermediate Strata (Photo © Pezo von Ellrichshausen)
Intermediate Strata (Photo © Pezo von Ellrichshausen)

The massive columns and slab, in their boldness, promote a sense of enduring presence, of discreet contemplation, of arcane shadows, within an opaque and transparent milieu (the X factor in Nietzsche’s words, which remains inaccessible and undefinable for us). Thus, the apparent abstraction of the whole spatial form, in fact, is a deliberate extension of a native feeling, somehow confirming our understanding of architecture as a “second nature.” 

Upper Strata (Photo © Pezo von Ellrichshausen)
Upper Strata (Photo © Pezo von Ellrichshausen)

In as much as the columns remain inexpressive, there is a vacant space, both physical and mental, to be filled. If on the floating salon tables and chairs will configure a regular or extraordinary event, the columns on the lower and upper strata will serve as supports for garlands, candles or canopies, for traditional rituals or lively celebrations. The entire structure is made out of reinforced concrete, with a soft green tint, and dark claddings of oak and terrazzo.

Site Plan (Drawing © Pezo von Ellrichshausen)
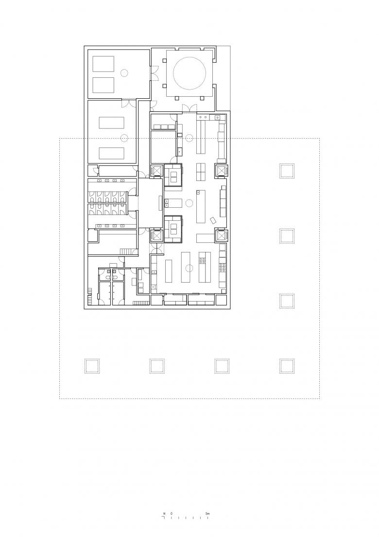
1F Plan (Drawing © Pezo von Ellrichshausen)
2F Plan (Drawing © Pezo von Ellrichshausen)
3F Plan (Drawing © Pezo von Ellrichshausen)
Roof Plan (Drawing © Pezo von Ellrichshausen)
Project: REST, 2025
Location: Gyeonggi-do, South Korea
Client: Les Jardins de Medongaule
Architect: Pezo von Ellrichshausen, Yungay
  • Principals: Mauricio Pezo & Sofia von Ellrichshausen
  • Collaborators: Emilie Kjaer, Francesco Caminati, Masha Arnold, Manuel Heck, Beatrice Pedrotti, Lukas Vajda
Local Architect: See Architects
Structure: Chang Minwoo
Construction: C&O
Consultants: Macand Mec Inkok Enc, Rainbowscape
Landscape: Jardins de Sericourt / Dongsimwon Landscape Design
Site Area: 5208 m2
Building Area: 3,376 m2 (1,563 m2 indoor, 1813 m2 outdoor)
Drawing © Pezo von Ellrichshausen
Drawing © Pezo von Ellrichshausen
Model © Pezo von Ellrichshausen
Model © Pezo von Ellrichshausen
Drawing © Pezo von Ellrichshausen
Drawing © Pezo von Ellrichshausen
Drawing © Pezo von Ellrichshausen

Related articles 

Other articles in this category