FUSO atelier d’architectures

Transformation of Warehouse to Offices

FUSO atelier d’architectures | 22. February 2016

PROJECT DETAILS

Program

Transformation of a warehouse in offices

Client
SCI Jean Martin

Architect
FUSO atelier d’architectures

Location
6 rue Jean Martin, Saint Ouen (93)

Surface Area
1.330m2 of ces +920m2 outdoor

Completed / Cost
2015 / 2.1M €

Photographs
Clement Guillaume 

Photo: Clement Guillaume

The transformation of a warehouse into offices immediately raises the question of natural lighting and thermal comfort. We considered the size of the volume (60m x 30m x 4.3m) and the scarcity of façade openings as so many positive constraints to structure the project in two main interventions: creating closed spaces using prefabricated timber and opening two exterior patios. 

Photo: Clement Guillaume
Photo: Clement Guillaume

Favoring a playful and warm atmosphere, offices and meeting rooms are made of structural wooden panels. Prefabrication through digital machining of these elements enabled rapid implementation on site without the need for lifting equipment. 

Photo: Clement Guillaume
Photo: Clement Guillaume

Acoustically treated, they structure the space without partitioning it in order to let natural light into the depth of the volume and answer technical constraints: networks, smoke control and free cooling. 

Photo: Clement Guillaume
Photo: Clement Guillaume

Cut from the mass of the volume of the old storage room, the patios provide controlled natural light. Blurring the frontier between outdoor and indoor spaces, they offer a framing of the sky and highlight the depth and intimacy between open office spaces. 

Photo: Clement Guillaume
Photo: Clement Guillaume
Operational Levels (Drawing: FUSO atelier d’architectures)
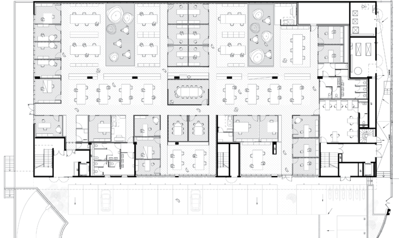
Floor Plan (Drawing: FUSO atelier d’architectures)
Longitudinal Section (Drawing: FUSO atelier d’architectures)

PROJECT DETAILS

Program

Transformation of a warehouse in offices

Client
SCI Jean Martin

Architect
FUSO atelier d’architectures

Location
6 rue Jean Martin, Saint Ouen (93)

Surface Area
1.330m2 of ces +920m2 outdoor

Completed / Cost
2015 / 2.1M €

Photographs
Clement Guillaume 

Related articles 

Other articles in this category