Tago Architects
Ulugöl Otomotiv Office Building
Located on one of the most important life and finance centers of Istanbul, Ulugöl Otomotiv Office Building, designed by Tago Architects was approached as integrating a functional, genuine and qualified architectural design with its dynamic form and its frontal identity that will stick in the minds in the region hosting many iconized new generation real estate projects.
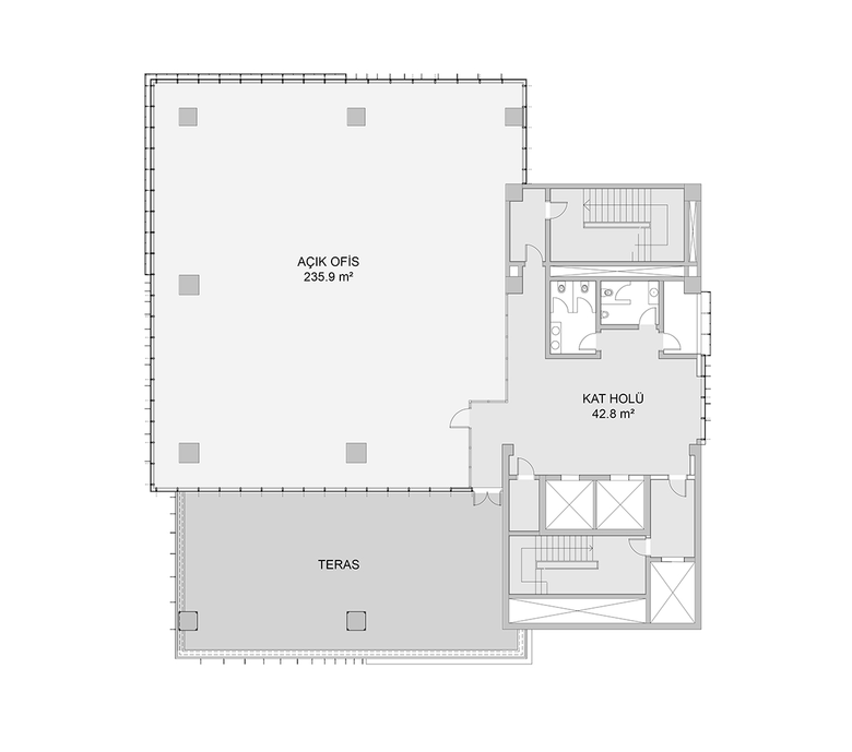
The main design decisions of the project were shaped to act as a vision of a sustainable, rational and ordered structure, and reconstructing the standard office typology through analyzing the physical data of the environment in the city. In this way it was aimed to ensure the versatility of the front by means of flexible blocks, creating looseness and compactness relationships by considering a static construct, and providing a synergy between green terraces, office functions, and social interactions among the employees with collective spaces. Furthermore, thinking that they are integral parts of daily life, the green spaces were integrated into the work places and the transparency of the workplace environment was enhanced.
For the purpose of enriching the front with material diversity, red composite panels were used on the interior faces of the terraces, and stone design ceramics on the windowless walls of the building. On the office front, negative effects of the sun were minimized through mesh sun shade panels and vertical elements. Ground floor of the western front of the Ulugöl Otomotiv Office Building, which consists of 5 basement floors, a ground floor and 10 normal floors with its 15,000 m² construction field, was allocated as an exhibition hall and its eastern front as office entrances and a parking lot. Connection to the parking garages was enabled through car elevators.
PROJECT DETAILS
Project Name
Ulugol Otomotiv Office Building
Project Location
Istanbul, Turkey
Architectural Design Office
TAGO Architects
Designer
Gökhan Altan Aktuğ
Design Team
Müge Eker Eryayar, Dilara İlker, İlksen Aris İğci, Serdar Kızıltaş
Project Type
Office Building
Total Project Area
14,600 sm











