NORD Architects Copenhagen

Urban Hospice

NORD Architects Copenhagen | 21. August 2014
Hospice seen from the main street. Image: NORD Architects Copenhagen

The overall form and concept were heavily influenced by the complex site conditions and the proximity of the neighboring built context. Within these parameters, the vision was to create a warm and protecting atmosphere. The design incorporates both curved and rectilinear elements that allow for an optimal functional layout, built around a private inner courtyard.

Overall view of Hospice. Image: NORD Architects Copenhagen

The design-process of the building consisted of a close collaboration between architects, clients and users through a dialogue-based process that had a major impact on the final design.

“By considering the needs of the users, client and neighbors, Urban Hospice sets a new standard on how you can build innovative healthcare projects in urban contexts,” says Morten Rask Gregersen partner in NORD Architects Copenhagen. The project was designed at a scale that adapted to the neighborhood, presenting a combination of spacious views and privacy for the patients.

The project is expected to be completed by the end of 2015 and will accommodate a capacity of 16 beds.

Main entrance. Image: NORD Architects Copenhagen
From building site to building concept. Drawing: NORD Architects Copenhagen
Building and context. Drawings: NORD Architects Copenhagen
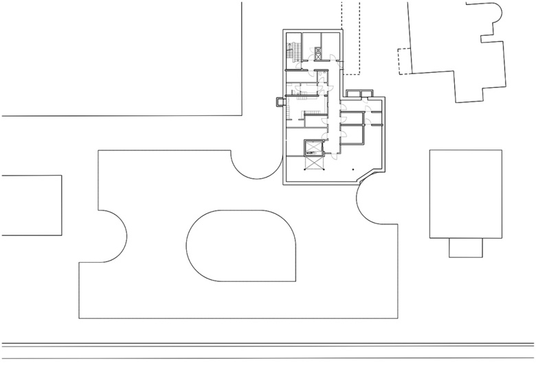
Basement floor plan. Drawing: NORD Architects Copenhagen
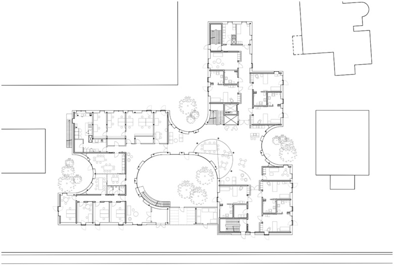
Ground floor plan. Drawing: NORD Architects Copenhagen
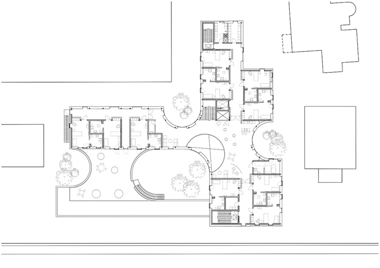
First floor plan. Drawing: NORD Architects Copenhagen
Ground floor and first floor. Image: NORD Architects Copenhagen
Interior model. Photo: NORD Architects Copenhagen

Other articles in this category