Vertical Lofts

studio PROTOTYPE | 2. July 2019
Photo: Jeroen Musch
Project: Vertical Lofts, 2019
Location: Amsterdam, Netherlands
Client: Development collective
Program: Loft apartments
Architect: studio PROTOTYPE
  • Design Team: Jeroen Spee, Jeroen Steenvoorden & Mitchel Verkuijlen
  • Project Team: Rossella Villani, Luca Vatteroni, Steven Otten, Gijs van Suijlichem, Dieter Vlieghe, Ruben Figueiredo, Jésus Huerta Chilet 
Contractor: Bouwbedrijf Van den Hengel BV 
Construction: Pieters Bouwtechniek Delft BV 
Adviser E & W Installations: ABT 
Building Area: 2500m2
Photo: Jeroen Musch

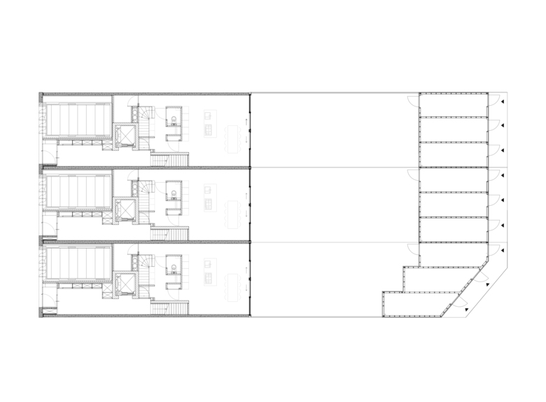
Studio PROTOTYPE saw an opportunity to design a clear structure opposed to the diversity of design following the do-it-yourself initiatives in the street. This structure is distinctive in scale and materiality and a translation of the typological design of loft apartment. The residential houses are at the sun side of the building spaciously connected by means of a void. A central core enables an open living environment, in which multiple set-up principles are possible. The core has been remained as small as possible by placing the stairwells completely outside of the building, making them part of the balconies on the backyard side. This finding, of placing the stairwells on the outside of the façade, resulted in more open living space within the complete building contour.

Photo: Jeroen Musch

By breaking up the structure at the plinth and the crown, the building opens up to the street and the view. The rhythm of the concrete façade emphasizes the loft apartments for which grand and high windows have been created, based on the maximum glass size of 5.40 meters. The windows give a framed view on the new developed neighborhood.   

Photo: Jeroen Musch

The concrete façade structure has been given multiple surface treatments, such as a surface with a coarse structure for the front façade pennants. The pennants are poured in traditional wooden molds. The deeper detailed concrete frames are treated to have a more smooth structure in order to create a more subtle difference in texture between coarse and smooth within the concrete materialization.

Photo: Jeroen Musch
Photo: Jeroen Musch
Photo: Jeroen Musch
Photo: Jeroen Musch
Ground Floor Plan (Drawing: studio PROTOTYPE)
Upper Level Floor Plan (Drawing: studio PROTOTYPE)
Building Section (Drawing: studio PROTOTYPE)
Front Elevation (Drawing: studio PROTOTYPE)
Rear Elevation (Drawing: studio PROTOTYPE)

Other articles in this category