Ares Partners
Yun House Boutique Eco-resort
Yun House is a boutique eco-resort nestled within a village at north eastern part of Yangshuo which situated along the dramatic landscape of the Li River.
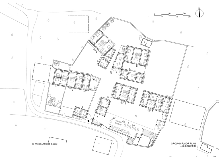
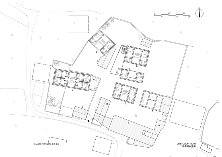
The site consists of nine renovated old farm houses and one new addition which functions as an all-day dining restaurant for hotel guests.
Taking on a sensitive approach to the local culture with villagers still living nearby, the overall planning and landscape design blends into the original village structure without creating new boundary conditions to the villagers.
The rammed earthed buildings were retrofitted to accommodate refreshing and uncompromisingly contemporary living, while the new restaurant addition adopts an understated presence with the use of steel frame, glass pivot doors and windows, in contrast with the locally sourced rough-cut stone blocks, charcoal treated wooden louvers and terra-cotta roof tiles to provide a rich tactile experience.
The spatial dialogue and sense of continuity between the old and the new buildings maintain an order of symbiosis between the foreign (hotel) and the local (village). The same design principle extends into the interior space of the hotel.
The dialogue between people, space, light and landscape is well thought out. The typical layout of the vernacular house here is a three bay structure with a double height volume in the middle bay.
Each typical building consists of four guest rooms with a shared living and hangout space in the center. Bamboo, wood, galvanized steel, concrete finishes and pebble washed stones are main materials being used in interior spaces.
Most of wood beams and existing wooden doors are being refurbished and reused on the project. Our intent is to bring clam and tranquility atmosphere into the interior space. The exterior building material is quite modest and unpretentious which we would want the interior to echo.
PROJECT CREDITS
Project
Yun House Boutique Eco-resort (YunLu)
Location
Xin Ping Village in Yangshuo, Guilin, China
Building Area
3,000 m²
Guest Rooms
23 rooms
Type
Renovation and New Building Addition
Architect, Renovation of Guest Houses
Ares Partners
Interior Design and
Landscape
Ares Partners
Architecture (New addition)
Atelier Liu yuyang Architect
Photography
Su Shengliang
Related articles
-
The Three-Body Problem: Trapped in a Wave Sandwich
Eduard Kögel, Scenic Architecture Office | 13.04.2026 -
-
-
A Loop for the Arts: The Xiao Feng Art Museum in Hangzhou
Eduard Kögel, ZAO / Zhang Ke Architecture Office | 15.12.2025 -












