Studio Komma / The Men of Foam

ZIP2516

Studio Komma / The Men of Foam | 12. April 2017

PROJECT DETAILS

Client

Municipality of The Hague

Location
The Hague, the Netherlands

Start Design
2016

Completion
2018 (expected)

Size
3,000m2

Architect
Studio Komma

Team
Maarten Thewissen, Joost van Rooijen

Concept Developer
The Men of Foam

Structural Engineer
IMd Raadgevend Ingenieurs

Installation Engineer
Galjema Technisch Adviesbureau

Cost Consultant
IGG Bouweconomie

Urban Mining Consultant
New Horizon

Wide stairs welcome visitors to the lifted square. (All images © Studio Komma / The Men of Foam)

The winning proposal, titled “ZIP2516”, seeks to create an iconic building that is an accelerator for the transformation of an industrial area into a new energetic urban district. It combines multiple functions within a building that is fully re-mountable and reuses an old parking garage.

An old parking garage is reused for the base, while the top is new, high-tech and fully demountable.

A challenging mix of functions
The project is to be located on The Binckhorst, an introverted industrial area very close to The Hague that is currently transforming into a living and working district. ZIP2516 is a concept where social and commercial entrepreneurship will meet, and is combined with a multifunctional public space.

The ground floor of the building accommodates the flagship store of a social entrepreneur, Happy Tosti. On the first floor is a public square, the ‘urban play ground’, covered by two floors of office space for start-ups. On top, the program is completed by a special ginbar with roof terrace.

In the design, the program is stacked and projected on the plot, and is partially lifted to make room for the public square. Next, the ground floor is modified in such a way that it creates a welcoming gesture to its users and visitors. With this iconic building, the team wants to add both economically and socially value to the area, and become a genuine accelerator for the transformation of the area.

A dynamic lifted square interacts with social entrepreneurship and the startup community.

A circular building as a Lego-package
The competition brief calls for a building that can activate the location for ten years, after which it will be decided whether the building remains permanently. This requirement challenges to think about temporary structures that have a permanent high quality. The team decided to make a building on the principle of a Lego-package. Smart structural joints ensure that the building can be dismantled at an elementary level. After ten years, if needed, the whole building can be moved and re-mounted at a new location to boost the urban and/or regional economy. A circular construction principle based on value preservation, and adaptable to future developments.

A fully demountable building - the lego-concept

Urban mining: an old parking garage reused
ZIP2516 is carefully designed so that an old parking garage can be reused almost completely. By making clever use of the donor building, the components (floors, beams, railings) can be reused in different ways for the realization of the ground floor and the urban playground. Following the Lego principle, the donor parts are also made removable, and can move to the next location.

The jury has assessed the proposal as “a plan with guts” and as a real eyecatcher focusing on the future users of the area. City Counsel Member Revis: "It’s a good innovative concept that fits the developments Binckhorst and is an asset to the area around the Binckhorst Harbor. The area will be further refurbished in the near future, and developed more and more into an area to work, live and recreate."

Reuse of and old parking garage: urban mining
Sustainability: an energy-neutral building
Site plan
Building section
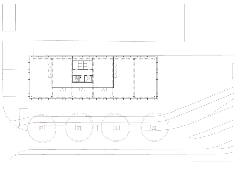
Ground floor plan
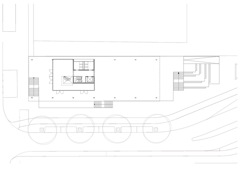
First floor plan
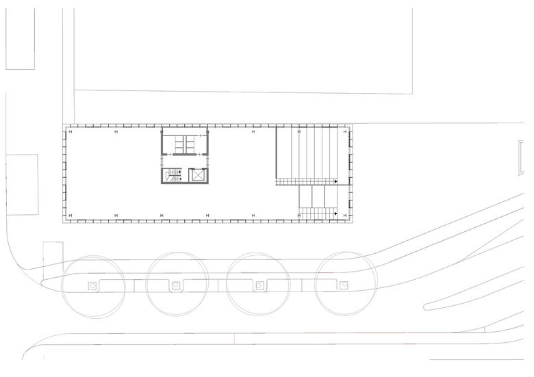
Second floor plan
Third floor plan
Fourth floor plan

PROJECT DETAILS

Client

Municipality of The Hague

Location
The Hague, the Netherlands

Start Design
2016

Completion
2018 (expected)

Size
3,000m2

Architect
Studio Komma

Team
Maarten Thewissen, Joost van Rooijen

Concept Developer
The Men of Foam

Structural Engineer
IMd Raadgevend Ingenieurs

Installation Engineer
Galjema Technisch Adviesbureau

Cost Consultant
IGG Bouweconomie

Urban Mining Consultant
New Horizon

Other articles in this category