Büro und Gewerbehaus" Yond"
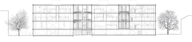
YOND kombiniert einen attraktiven städtischen Standort mit einem neuartigen Raumangebot, das sich insbesondere an das “urbane Gewerbe” richtet. Eine robuste Struktur mit hohen Nutzlasten und 5 ½ Meter hohen Räumen erlaubt eine annähernd uneingeschränkte Flexibilität für Nutzungen aller Art. Vom klassischen Dienstleister über das städtische Kreativgewerbe bis zur industriellen Produktion kann dieses Gebäude auf die unterschiedlichsten Nutzungsanforderungen reagieren.
Nebst der nutzungsbezogenen Offenheit bietet YOND auch eine sehr hohe räumliche Flexibilität. Die Mietflächen können sowohl in grösse als auch ihrer räumlichen Ausgestaltung laufend an die Bedürfnisse und Wünsche der Mieter angepasst werden. Ein System aus Zwischenböden erlaubt die individuelle Ausgestaltung sowie eine einfache Anpassbarkeit der Mietflächen. In Kombination mit der fast raumhohen Verglasung entsteht so eine Atmosphäre, die an klassische Industriebauten erinnert und diese mit einem zeitgemässen Infrastruktur- und Serviceangebot verknüpft.
Vom Grundriss bis zur Erscheinung folgt die Architektur dem Gebot der Einfachheit. Aussen schlicht und kraftvoll, innen funktional und authentisch. Offenheit, Klarheit und Reduktion schaffen ein Raumklima, das Konzentration und Austausch fördert. Das Erdgeschoss bietet Raum für publikumsorientierte öffentliche Nutzungen und wird in Zukuft als Treffpunkt der YOND-Community auch das Quartier und das weitere Umfeld beleben.
- Arquitectos
- SLIK Architekten
- Año
- 2019
- Estado del proyecto
- Construido
Proyectos relacionados
Magazine
-
La Construcción de la semana
The Three-Body Problem: Trapped in a Wave Sandwich
Eduard Kögel, Scenic Architecture Office | 13.04.2026 -
-















