Daegu Anchor Facility
Suseong-gu, Daegu, South Korea
Deulan Art Village, creating a "urban anchor" in the city of Daegu.
Our design is about creating an "urban anchor" – buildings whose impact on the neighborhood helps the urban renewal of an entire district and promotes structural and social environment.
Refurbished anchor buildings act as prototypes for the successful South Korean "Soft City Renewal" policy in the predominately residential neighborhoods. Our work is a pilot project in the city of Daegu involving a team of experts, consultants, and insiders. The Art Village Building started as an abstract idea, with discussion and participation of all parties involved in the project, and ended with the practical implementation.
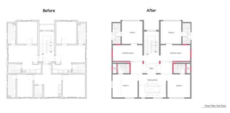
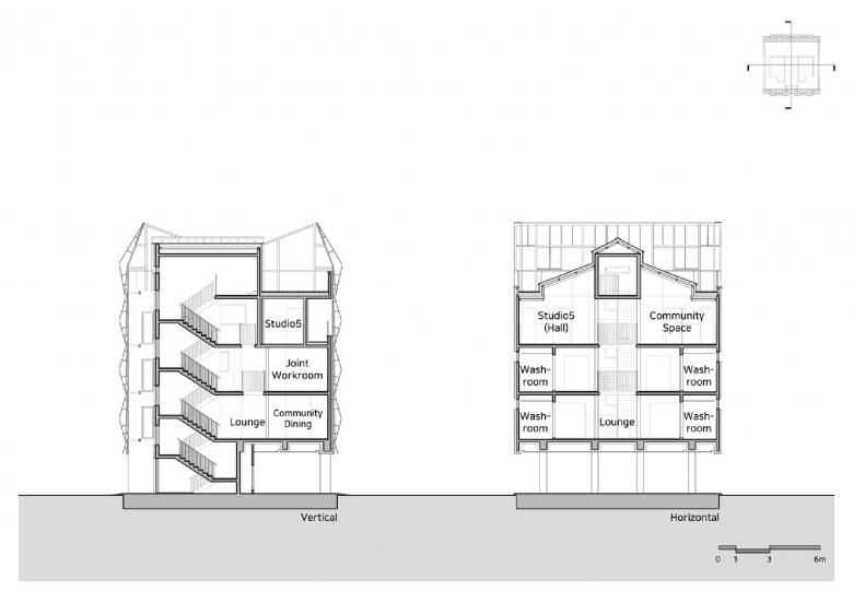
We considered a number of topics, especially the link between the environment and ecology, new communication methods, new forms of design, and analyzed several examples of refurbishment in the past. The design resulted in a complex symbiosis of content, form, material, and construction. We considered all potentials besides the previous use as an apartment building as well as the limitations of its mainly concrete construction and decided to refurbish the house and give it a new life and spatial program. The Art Village Building now offers space for local artists with five new studios for arts and crafts and a string of community spaces for diverse activities. Instead of parking lots on the ground floor, we created a public space for the neighborhood that also protects from the elements.
The visitors experience the continuity of the public space ambiance. The concept of interior space enhances the use of indoor space and encourages a more prolonged stay without using the space only for private purposes. The old energy-inefficient outer shell was removed, and the building was insulated with a lightweight exterior insulation system. An additional shell was installed, constituting a double skin made of an easy-to-install and easy-to-maintain expanded aluminum metal panel. It covers the existing windows but allows light and air to pass through. We emphasized the ability to open and close the individual units. We achieved spatial integration by partially opening the public floor and the staircase, connecting the entire building into a single space.
The design process observed the following precisely defined objectives in converting a substandard housing building into an open house for art and artists:
-Re-use and refurbishment instead of new construction as a general contribution to a more ecological approach to the renewal of cities -Ground floor must be accessible to the local community with outdoor activities for public events, a library, a workshop space, an open-air cinema, and so forth.
-Primary goal is to raise the quality of the community and make the district attractive to its residents again
-Create an intimate environment for the artists and artisans; we created a platform for them and connected them with our building
-Solve the problem of parked vehicles surrounding the neighboring parks and blocking access to public areas; in response, we created the first "car-free zone" on the ground floor
-Instead of parking lots the main street is to be unrestricted for public use and converted into a "green" promenade
-Increased visibility: a colored ground path is an optical connection to the park and subsequent projects.
Based on the master plan, we were commissioned to design an artist's studio in Deulan Village within the cultural ground surrounding Suseong Pond. We sought to enable and encourage residents to use it actively in conjunction with the park. The infrastructure was designed to facilitate the outdoor use of certain facilities, such as an open-air library, a community cinema, a tea room, etc.
"A network of interconnected public facilities in Suseong-gu around the park will improve the living conditions in the residential block. In this way, we support Suseong-gu's efforts to make public space an asset in sustainable revitalization, a vital task of the urban renewal project."
- Arquitectos
- Jadric Architektur
- Año
- 2022
- Estado del proyecto
- Construido
- Cliente
- Suseong-gu District
- Equipo
- Mladen Jadric & Yoon GeunJu with: Na JiHye, Choi HyungSun, Byonghun Lee, Nikolaus Punzengruber, Jakob Mayer, Nerea Garcia
- Main Contractor
- Hub structure Engeneering






























