Technological Innovation and Cutting-Edge Design
Confidential, Ramsau am Dachstein, Austria
At home in the Alps
In recent years, Alpine architecture is proving on several fronts to be the architectural typology undergoing truly interesting transformation. Traditional materials and forms are responding to new trends and incorporating new applications, which although not constituting a revival, have prompted a renewed interest in buildings in mountainous areas. This has also been triggered by the virtuous cycle undergone by one of the most sustainable materials ever: wood. Traceable, recyclable, durable and of low environmental impact, timber, especially in its most high- tech and innovative versions – from the well-known glulam through to the newer cross-laminated timber is one of the oldest construction materials.
By the same token, the continuous glazing strip brings the landscape into the cozy living area where warm polished pine-colored plywood echoes typical alpine interiors. Invisible from the outside, rectangular-section glualm pillars give a rhythmic sequence to the interior space, almost as if tocreate a series of photo-frames of the splendid scenery outside. On the upper floor, the walls of the spacious, monastically sober, rooms have been hand-finished with a coating of gray thermal insulation plaster, a non-color that blends with the sky and dialogues with the bare mountain rocks visible in the distance through the large glazed openings.
Building with wood led to centuries-old craftsmanship construction methods that are similar around the world. Today, however, designers and technicians have expanded the structural resistance of natural wood so that it can now be called an engineered material with a bright future. New wood products are expanding the boundaries of wood as a building material, so much so that it is now entering our cities built with concrete as a structural option. In mountainous regions, the new high-tech buildings with low environmental impact are moving away from the typical traditional typologies, adopting confident designs eager to combine environmental responsibility with technological innovation and cutting-edge design. The Chalet by Jadric is part of this change.
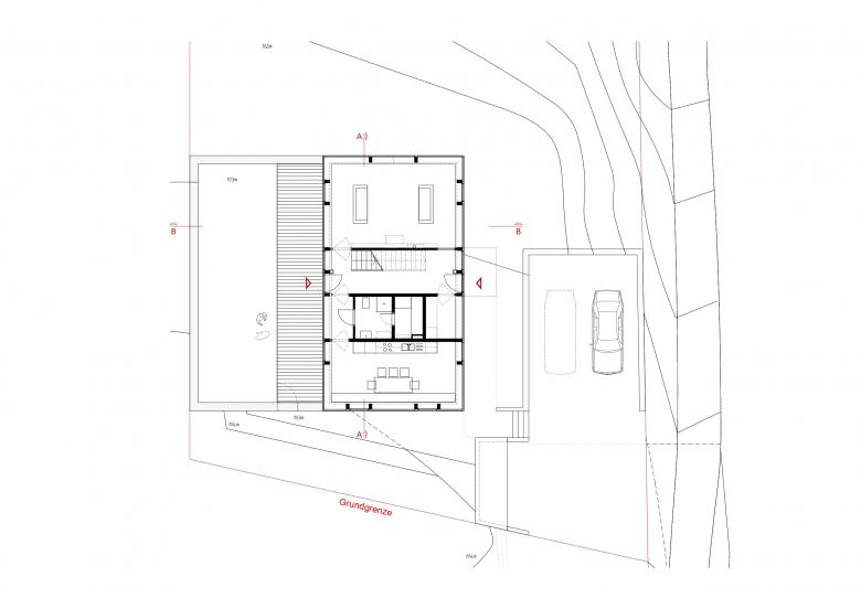
Although taking the traditional name, and retaining some features of the traditional alpine house, it stands for something completely new. This family vacation house on the slope of the Dachstein Mountains is intriguingly minimalist. The air of sober privacy and humility typical of alpinee buildings is achieved through a play of solids and voids on the façades under a large gabled roof. Resting on a reinforced concrete basement housing mechanicals and other services, the building comprises a glulam structural frame and a concrete stiffening element that wraps around the wet block of bathrooms and kitchen and supports the open indoor staircase. From outside, this large Alpine lodge, clad in gray-stained vertical slats, appears suspended above ribbon windows running around the ground floor.
Ribbon windows also feature on the short – north and sourth – sides of the upper floor where the bedrooms are located. This extremely precise design brings to mind the Doge‘s Palace in Venice for the way the order of light and heavy layers has been switched around, subverting classical composition. The continuous succession of ground floor windows – where a kitchen and living space are embellished by a striking, contemporary-style wood-burning stove – give occupants the feeling to being immersed in the surrounding landscape.
(Text by Alexander Peer)
- Arquitectos
- Jadric Architektur
- Año
- 2022
- Estado del proyecto
- Construido
- Cliente
- Confidential
- Main Contractor
- Henry Lackner, Fischer-Bau GmbH, Schladming





























