Neubau Wohnhaus Sagengasse
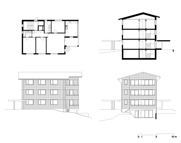
An der Siedlungsgrenze gelegen, kommt dem Gebäude eine vermittelnde Rolle zwischen ruralem Kontext (bergwärts) und heterogener Siedlungsstruktur (talwärts) zu.
Seine klare Struktur und die Fassaden aus regionalen Fichtenschindeln schaffen einen für diesen Ort angemessenen, ruhenden Pol.
- Arquitectos
- Beda Dillier
- Año
- 2014
- Estado del proyecto
- Construido
- Equipo
- Keith Fletcher, Beni Hess
- Fotografien
- Architekturbüro Beda Dillier, Sarnen










