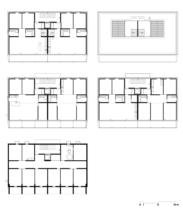
Neubau Wohnhaus Kirchstrasse
Im Kontext historischer Bauten behauptet sich das Wohnhaus an der Kirchstrasse selbstbewusst. Es setzt einen zeitgemässen Akzent in unmittelbarer Nähe zu Regierungsgebäude und geschichtsträchtigem Landenberg. Die klare Struktur lassen es selbstverständlich und zurückhaltend erscheinen.
- Arquitectos
- Beda Dillier
- Año
- 2004
- Estado del proyecto
- Construido
- Equipo
- Roger Durrer, Hans Küchler
- Fotografien
- Roger Frei, Zürich; Walter Mair, Zürich











