Neubau Wohnsiedlung Brunnmatt
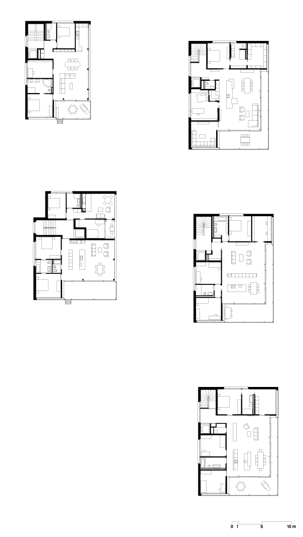
Das Brunnmattquartier ist geprägt von traditionellen und modernen Bauten in Holz- und Massivbauweise. Das architektonische Konzept sieht vor, zwischen diesen Gebäudearten zu vermitteln.
Während die Häuser auf der Ost- und Nordseite geschlossene, verputzte Fassaden aufweisen, öffnen sie sich sonnseitig mit grossformatigen Glas- und Holzpartien.
Im Grundriss bildet sich dieses Prinzip ebenfalls ab: die Zimmer spannen winkelförmig einen grosszügigen Wohnraum auf, der seinen Abschluss in der sonnigen, attraktiven Terrasse findet.
- Arquitectos
- Beda Dillier
- Año
- 2013
- Estado del proyecto
- Construido
- Equipo
- Keith Fletcher, Erich Vogler, Julian Omlin
- Fotografien
- Architekturbüro Beda Dillier, Sarnen













