Seoul Photographic Art Museum
Seoul, South Korea
Jadric Architektur and their Korean Partner "1990uao" (Yoon Geun Ju) are chosen to realize the Seoul Photographic Art Museum after winning an international Design Competition.
The dynamic design will serve as a sculptural landmark along the future cultural mile in Chang-dong. Its twisting monolithic shape enriches the surrounding puplic space as well as the overall architectural identity of the district.
The symbiosis between photography and architecture can be seen as follows: Photography is painting with light; architecture is the play of forms gathered in light.
The dynamic movement of the object symbolizes a snapshot - a characteristic that architecture and photography share. The form reacts to the directions of outside movement and thus constitutes a highlight of the newly planned „culture mile.“
The building merges with the square and thus becomes a walk-in object for sitting and lingering, thus creating a generous public space. On the ground floor, we are attracted to an open „guest room“ with plenty of space.
The concept envisages a double serving of social space: Urban landscapes in the interior and exterior of the buildings for visitors and the neighboring housing estates thus offer more quality for the entire environment.
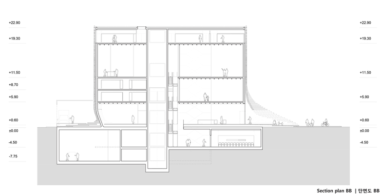
The functional units within the buildings are logically connected and allow natural orientation and comfortable movement of visitors through exhibition areas. For exhibitions, we envisage a „white cube concept“ - flexible and suitable for any presentation. Rooms are easy to connect to form larger exhibition units. Education rooms are bundled on the uppermost floor.
The lighting concept envisages an interaction between the building and light with backlit concrete ribs instead of a classic screen — a symbiosis between light and body.
- Arquitectos
- Jadric Architektur
- Estado del proyecto
- Diseño
- Equipo
- Jakob Mayer, Federica Rizzo, Nikolaus Punzengruber, Dennis Przybilka, Max Krankl, Byonghun Lee, Daria Jadric
- Korean Partner Office
- 1990uao (Yoon Geun Ju), 1990uao@gmail.com
- Visualization
- Claudio Anderwald Computergraphics, claudioanderwald.com



















