Umbau Salemskapelle Steinwiesstrasse 34
Steinwiesstrasse 34, Zürich, Suisse
Die denkmalgeschützte Salemskapelle wurde 1898 im Stil des Historismus erbaut. Das Gebäude erfuhr in den Jahren 1963/64 einen radikalen Umbau, welcher insbesondere das Erdgeschoss und den im 1. und 2. Obergeschoss gelegenen Gottesdienstraum betraf.
Einerseits ist aufgrund von Auflagen der Denkmalpflege ein äusserer Sonnenschutz an den Rundbogenfenstern des Gottesdienstraumes nicht erlaubt, andererseits dürfen wegen Klagen aus der Nachbarschaft die Fenster während des Gottesdienstes nicht geöffnet werden. Dies verursachte durch die zunehmend heissen Sommertage zu hohe Raumtemperaturen während der Veranstaltungen. Zudem wurde die Luftqualität gegen Ende der Versammlung schlecht.
Diese Umstände führten dazu, dass mit der Planung einer Lüftungsanlage mit integrierter Kühlung begonnen wurde.
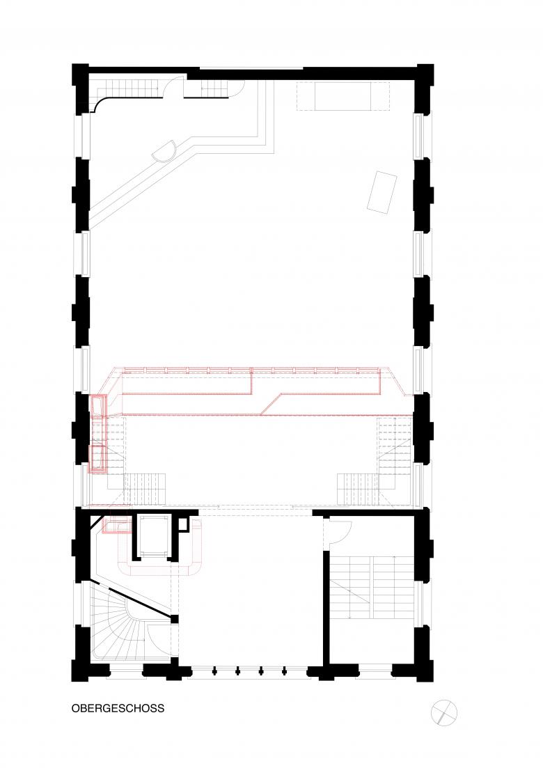
In Absprache mit der Denkmalpflege wurde eine Lösung für die Lüftung gefunden werden, welche sich in den Gottesdienstraum zurückhaltend integriert. Nachdem das ursprüngliche Konzept mit zwei an den Seitenwänden platzierten Luftsäulen verworfen wurde, kam der Vorschlag mit sehr flachen Gipskanälen unter der Empore zur Ausführung. Die Abluft wird im 1. Obergeschoss unterhalb einer der beiden Emporentreppen und im 2. Obergeschoss über einen Gipskanal an der Emporenrückwand abgesogen. Im Erdgeschoss werden die Lüftungskanäle im Hohlraum abgehängter Gipsdecken in die Lüftungszentrale geführt.
Während der Planungszeit für die Lüftungsanlage wurde der Ersatz der bestehenden Gasheizung notwendig. Die Gegenüberstellung verschiedener Wärmeerzeuger zeigte, dass die Erdsonden-Wärmepumpe die wirtschaftlichste Lösung ist. Zudem ergibt sich durch die Erdsonden-Wärmepumpe insofern eine Synergie mit der Lüftung als an Stelle einer Kältemaschine die Kühlung der Luft durch das «Free-cooling» erfolgen kann. Sechs Erdsonden mit einer Bohrtiefe von je 260m konnten so um die Kapelle herum angeordnet werden, dass mit Ausnahme zum öffentlichen Grund keine Näherbaurechte notwendig waren. Trotz der beiden haustechnischen Anlagen waren an der Gebäudehülle nur geringfügige Änderungen notwendig, nämlich der Ersatz von zwei Holzfenstern durch silbergraue Lüftungsgitter an den beiden nicht repräsentativen Fassaden. Der ehemalige Kamin kann in Zukunft als Schacht für die vertikalen Leitungen einer PV-Anlage auf dem Steildach der Kapelle genutzt werden, wodurch ein Teil des Wärmepumpen-Strombedarfes gedeckt werden könnte.
- Architectes
- Beat Nievergelt
- Année
- 2023
- Statut du projet+
- Construit
- Client
- Baptistengemeinde Zürich










