Umbau und Aufstockung MFH Zwinglistrasse 18
Zwinglistrasse 18, Zürich-Aussersihl, Suisse
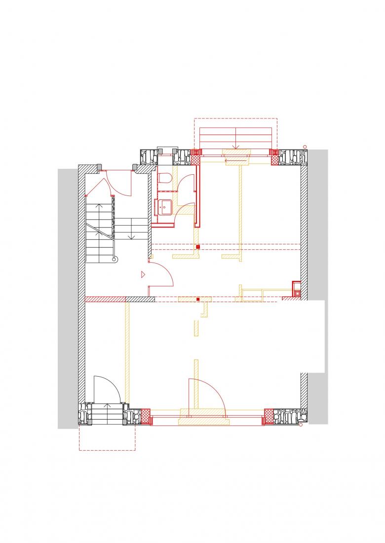
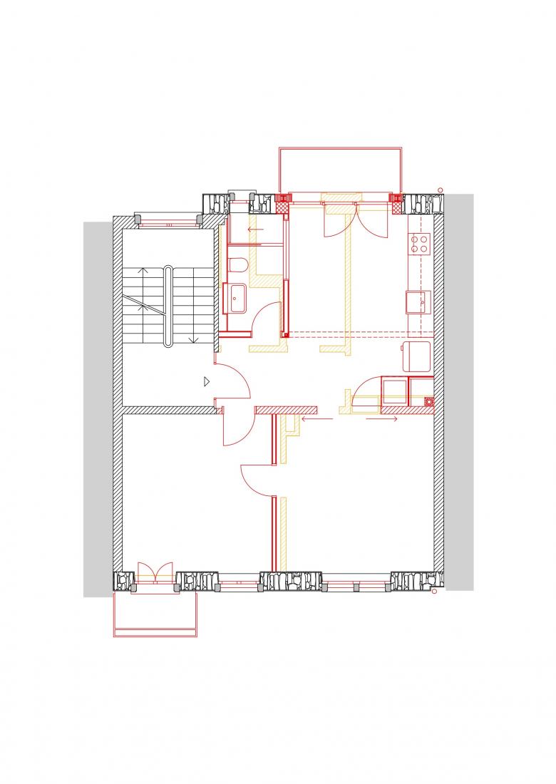
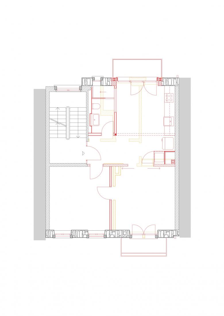
Das 1983 erbaute Mehrfamilienhaus ist Teil eines grossen Blockrandes. Das bestehende Gebäude enthielt vier 3-Zimmerwohungen, in denen das Badezimmer und die Küche gegen den Hof orientiert waren. Durch die Aufstockung in Holzbau-Elementbauweise konnten zwei zusätzliche Wohngeschosse hinzugefügt werden. Die Erdgeschosswohnung wurde in einen Gewerberaum umgenutzt, welcher über den bestehenden strassenseitigen Hauseingang erschlossen wird. Der Zugang zu den Wohnungen erfolgt neu über den Hof, so dass die bisherige Verkehrsfläche vom strassenseitigen Hauseingang zum hofseitigen Treppenhaus als zusätzliche Gewerbefläche genutzt werden kann. Die beiden parallel zur Fassade liegenden tragenden Innenwände wurden zum Teil durch Stahlkonstruktionen ersetzt. Somit entstand im Erdgeschoss und den drei Geschosswohnungen ein durchgestreckter Raum, welcher in den Wohnungen durch eine doppelflügelige verglaste Schiebetür unterteilt werden kann. Sämtliche Geschosswohnungen verfügen über zwei Balkone, wobei diese hofseitig als Stahlkonstruktion mit filigraner Bodenplatte aus Mineralit und strassenseitig in Ort ausgeführt wurden. Um die Holzstrebe im 4. Obergeschoss windet sich sich die wohnungsinterne Metalltreppe. Mit Ausnahme dieser Strebe wurde der zweigeschossige Holzbau im Innern vollständig mit Gips verkleidet. Die geschliffenen Anhydrit-Böden, die handgefertigten Keramikplatten in den Nasszellen und die Küchenfronten aus Seekiefer-Mehrschichtplatten prägen die Materialisierung in den Wohnungen.





















