Wohnungsbau Marschallhof (F)
Rue Schach/ Rue du Marschallhof, Strasbourg, France
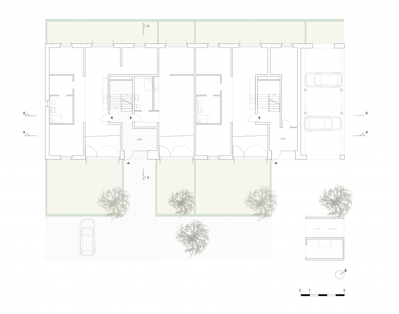
Dieser kleine soziale Wohnungsbau ist Teil eines von der SOMCO in Auftrag gegebenes Ensembles in Strasbourg-Neuhof, inmitten einer heterogenen, von Großwohungsbauten dominierten Nachbarschaft.
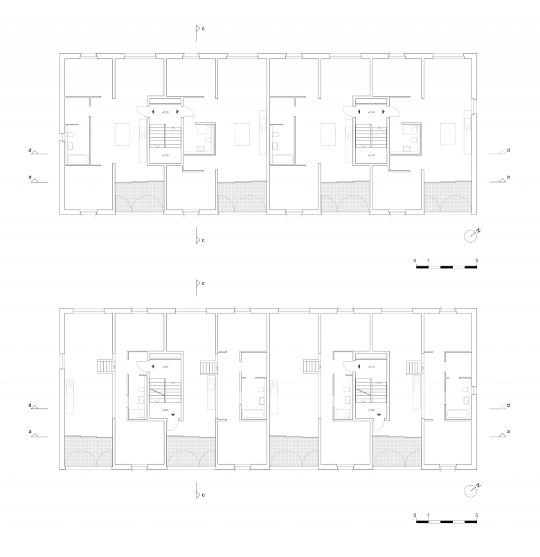
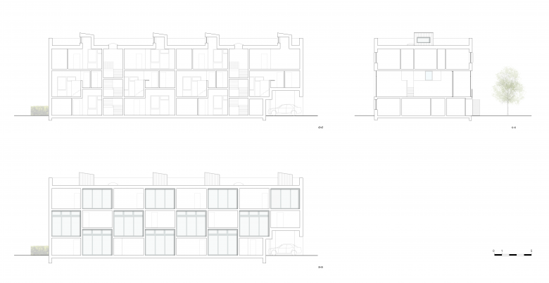
Die verspringende Geschossdecke über dem Erdgeschoss führt zu differenzierten Raumhöhen in den beiden unteren Geschossen. Dieser großzügige Raumeindruck wird durch großflächige Verglasungen beiderseits des durchgesteckten Wohn-/ Koch- und Essbereichs unterstützt, die auch eine natürliche Belichtung der Raumtiefe ermöglichen. Diese Funktion übernehmen in den oberen Wohnungen zusätzlich in Gebäudemitte angeordnete Oberlichter. Auf der Südwestseite verfügen alle Wohnungen über einen Wintergarten, der multifunktional als Loggia und/ oder Wohnraum genutzt werden kann.
Der Grundriss ist streng in sich abwechselnde, über die gesamte Gebäudetiefe erstreckende Zonen aufgeteilt. Die weniger hohen Schlafräume und Bäder bilden dabei die privatere Zone, während die öffentlichere Zone alle Funktionen um Wohnen, Essen und Kochen beherbergt.
Dieses Wechselspiel findet seinen Ausdruck auch in der schachbrettartigen Fassade, bei der sich geschlossenere und verglaste Bereiche abwechseln.
- Architectes
- Kuhn und Lehmann Architekten
- Année
- 2020
- Statut du projet+
- Construit
- Client
- SOMCO
- Équipe
- Berengere Giraudat, Daniel Lenz



















