Zentrales Kunstdepot Freiburg*
Freiburg, Allemagne
Die Freiburger Stadtbau GmbH realisierte als Bauherr ein Kunstdepot im Freiburger Stadtteil Hochdorf für die verschiedenen städtischen Museen, die Stiftungsverwaltung Freiburg und die Erzdiözese als gemeinsame Nutzer. Ziel war es, ein modernes Depotgebäude zu errichten, das den unterschiedlichen Anforderungen der sehr unterschiedlichen Objekte gerecht wird. Die Bedingungen zur Lagerung von Textilien erfordern eine andere Herangehensweise als die für Steinskulpturen oder Gemälde.
Aspekte der Raumklimatik, der Raumluftfeuchte, des Brandschutzes und nicht zuletzt der Sicherheit und des Einbruchschutzes mussten planerisch zusammengeführt werden. Bauteile mussten so gestaltet sein, dass sie keine negativen Auswirkungen auf die Kunstwerke haben. Außerdem wurde gleich zu Beginn angestrebt, das Gebäude in Passivhausbauweise zu errichten.
So musste direkt von Anfang an eine intensive integrative Planung von Architektur, Haustechnik, Brandschutz und Tragwerk erfolgen, bei der auch der Nutzer stets eng mit einbezogen war. Von Seiten der städtischen Museen und der Stiftungsverwaltung begleiteten Restauratoren die gesamte Planung. In stetigem Austausch zwischen Architektur, Nutzer und Ingenieuren wurde so gemeinsam an einer für die formulierten Anforderungen maßgeschneiderten Lösung gearbeitet und diese Schritt für Schritt optimiert.
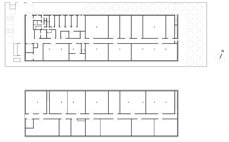
Das langgezogene Grundstück erforderte einen langgestreckten Baukörper. Die Grundrissgliederung ist äußerst einfach gehalten. Die großzügigen Depoträume selbst sind als einzelne Zellen zweiseitig entlang eines breiten Flures angeordnet. Diese Anordnung ermöglicht einerseits die Zellen mit jeweils maßgeschneidertem Raumklima auszustatten und vom Flur aus anzudienen, andererseits minimiert sie das Verlustrisiko im Brandfall, da jeder Raum von F90 Wänden umgeben ist und hält den Baukörper relativ kompakt. Die Wände sind massiv aus Mauerwerk und Beton errichtet, was die bauklimatisch erforderliche Trägheit erzeugt. Die kostbaren Objekte, die hier lagern, mögen weder Licht noch ertragen sie schwankende Temperaturen oder wechselnde Luftfeuchte.
Die Haustechnik sollte aufgrund von Leckagerisiken so weit wie möglich aus den Depoträumen rausgehalten werden. Die Verläufe der Installationen und die Anordnung der technischen Ausrüstung wurden von Anfang an in die Gebäudeplanung einbezogen.
Auch im Bereich der Tragwerksplanung wurden Synergien genutzt. Die Gründung erfolgte mit einer WU-Bodenplatte, deren Seiten eine Aufkantung aufweisen, was dem hohen Grundwasserstand Rechnung trägt. Als besonders günstige und effiziente Lösung für die großen Dachspannweiten wurden Hohlkörperdecken in Neigung verlegt. Die asymmetrische Dachneigung erzeugt einerseits variabel benutzbare Raumhöhenzuschnitte und ist dabei gleichzeitig für die südseitige Belegung mit Photovoltaik optimiert.
Da das Gebäude durch seine Massivbauweise überall nach außen die Anforderung F90 erfüllt, konnte die Fassadengestaltung (im Rahmen des knappen Budgets) recht frei erfolgen. Vor der dicken Dämmebene, die mit Wandsparren als Unterkonstruktion aus die massiven Wände aufgebracht ist, hängt eine klar gegliederte hinterlüftete Fassade aus Wellplatten. Der Sockel wurde mit Eternit-Wellplatten bekleidet. Die oberen Fassadenbereiche, sowie das Norddach wurden mit Polycarbonat-Wellplatten belegt, die je nach Lichteinfall schillern oder den Blick auf die dahinterliegende Konstruktion freigeben. Diese sehr wirtschaftliche Alternative zum WDVS prägt das ruhige aber dennoch luftige Erscheinungsbild des fast 100m langen Baukörpers und ist im Recyclingfall nahezu komplett demontier- und trennbar. Der Bau erinnert durch die wenigen Öffnungen und die „armen Materialien“ beinahe an eine große Scheune, oder an eine Schutzhütte.
Im Gesamtergebnis konnte gemeinsam mit Solares Bauen GmbH als Planungspartner das erste Passivhaus-Kunstdepot Deutschlands realisiert werden, dass durch die zusätzliche Photovoltaikbelegung in der Bilanz sogar ein Null-Emissions-Gebäude ist. Das Gebäude ist sparsam bei den Kosten, beim Einsatz von Ressourcen und beim Energieverbrauch.
*Pfeifer Kuhn Architekten, Günter Pfeifer und Christoph Kuhn
- Architectes
- Kuhn und Lehmann Architekten
- Année
- 2012
- Statut du projet+
- Construit
- Client
- Freiburger Stadtbau GmbH
- Équipe
- Daniel Lenz, Alexander Unsin, Sirka Eggers, Klaus Dömer
- Tragwerksplanung
- Theobald und Partner Ingenieure
- Bauphysik, Haustechnik
- Solares Bauen GmbH, Freiburg
- Nutzer
- Städtische Museen Freiburg














