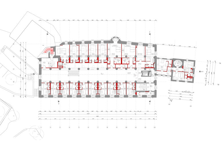
Jugendherberge in der Kaiserstallung
Burg 2, Nürnberg, Allemagne
Umbau, Sanierung und Modernisierung. Zukunftsorientierte Geamtmaßnahme eines exponierten Baudenkmals.
Umfang: 360 Betten, 93 Zimmer, Rezeption,Restaurant, Bistro, Lounge, Seminar- und Veranstaltungssaal. 6.500 qm BGF
Kunde
Deutsches Jugendherbergswerk
Landesverband Bayern e.V.
Leistung
Lph 2-9
Denkmalgerechte Sanierung, raumbildender Ausbau, Innenarchitektur
Planungs- / Bauzeit
2010 - 2015 / 01/13 - 04/15
Projektbeteiligte
ARGE Kaiserstallung Nürnberg:
Projektleitung raumb. Ausbau Bruno Franchi
Fotos
Robert Pupeter, München
Stefan Meyer, Berlin/Nürnberg





























