Wohnen »In den sieben Stücken« - Hannover
In den sieben Sücken, Hannover, Germania
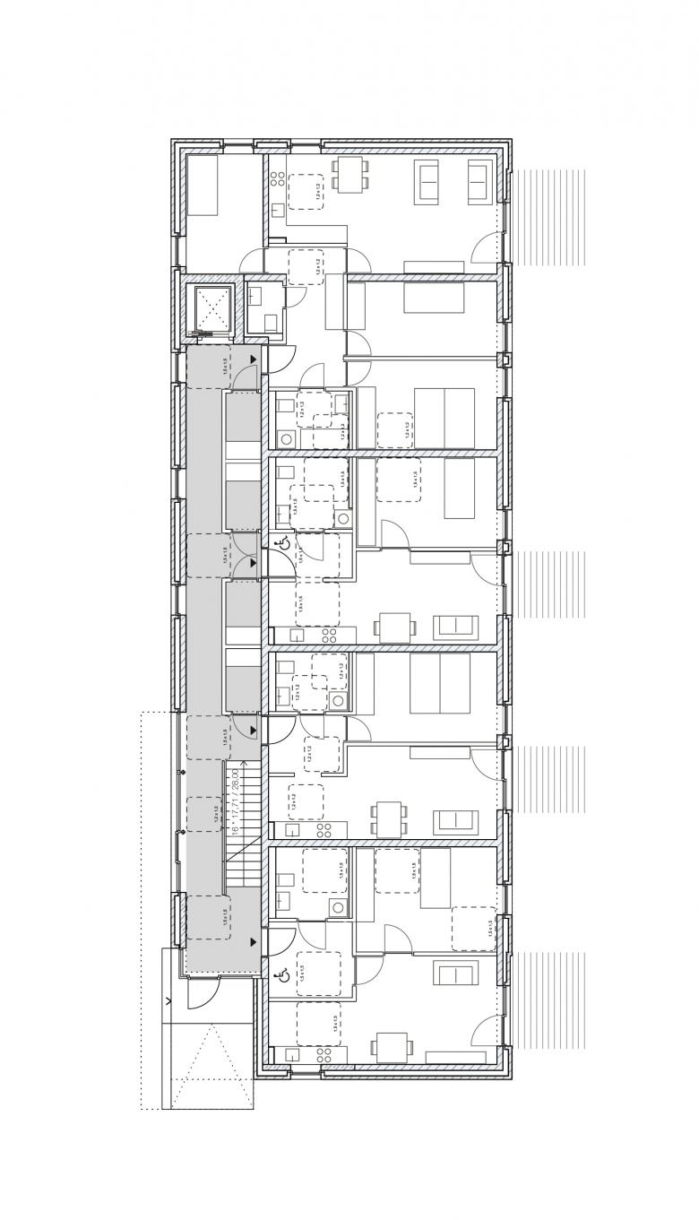
Neubau von 44 Wohneinheiten (2-4 Zi) im geförderten Wohnungsbau
- Architetti
- MORPHO-LOGIC Architekten BDA Stadtplaner
- Anno
- 2023
- Stato del progetto
- Costruito
- Cliente
- hanova WOHNEN gmbh
- Projektpartner
- HAMMER ARCHITEKTEN; München














