Raiffeisenbank Binningen
Hauptstrasse, Binningen, スイス
Die Geschäftsstelle Binningen der Raiffeisenbank Leimental liegt zentral im Dorf. Aus den leerstehenden Gewerberäumlichkeiten entstand eine grosszügige einladende Kundenzone, die im Sinne einer Beraterbank konzipiert wurde. Neben bankspezifischen Anforderungen sind auch sicherheits- und brandschutztechnische Aspekte sowie akustische Massnahmen nach neuestem Stand umgesetzt worden.
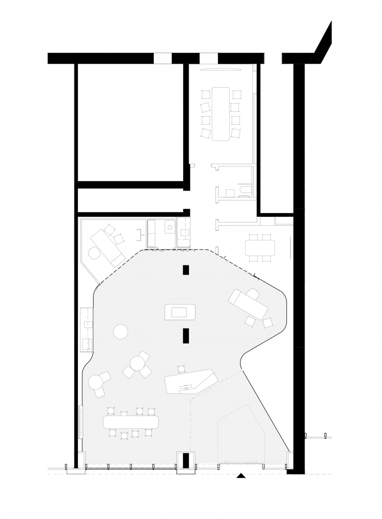
Die Bank präsentiert sich im vorderen Teil mit einem einladend offenen Konzept. Kern der grosszügigen Kundenzone bildet ein Kaffeebereich der jedermann zur Verfügung steht. Angegliedert sind verschieden gestaltete offene und geschlossene Beratungsbereiche. Im Schaufenster abgewandten Teil reihen sich entlang des Korridors zwei geschlossene Sitzungszimmer, kleiner Nebenräume und Bereiche für die Mitarbeiter auf. Unabhängig von den Öffnungszeiten, ermöglicht die von der Fillale abtrennbare 24h-Zone den Zugang zu den innenliegenden Bancomaten. Die raumhohe Glasfassade öffnet einladend den Kundenbereich und schafft wichtige Bezüge zwischen innen und aussen.
Als identitätsstiftende Elemente umfassen Holzelementwände in Nussbaum die Räume. Diese wurden im Kundenbereich zusätzlich mit Jute bespannt und mit Lehmputz verstärkt. Eine Technik die speziell für die Geschäftsstellen der Raiffeisenbank Leimental entwickelt wurde. Der Lehmputz schafft durch seine natürliche Struktur und seinen hellen Farbton eine lebendige, warme Oberfläche die zu einem sehr angenehmen Raumklima beiträgt. Die Materialien Nussbaum, Jute und Lehm sorgen mit dem fein abgestimmten Farbkonzept zusammen für ein einheitliches Bild und eine warme freundliche Atmosphäre.
Neben den Wänden und Nischen, die unterschiedliche Funktionsbereiche des Bankbetriebs ausbilden, findet sich der Nussbaum auch in den eigens für die Raiffeisenbank gefertigten Möbeln wieder. Dieses massgeschneiderte Mobiliar ermöglicht individuelle Beratungssituationen mit unterschiedlichen Diskretionsgraden und reagiert auf die verschienden Nutzungen. Während abgehängte Pendelleuchten die einzelne Beratungszonen hervorheben, sorgen Einbauspots für eine stimmungsvollen Grundausleuchtung zum Aufenthalt beim Café.
- 年
- 2022
- プロジェクトステータス
- 竣工済
- Möbelbau
- Rudin Solution Design













