Roche Bau10
Basel, スイス
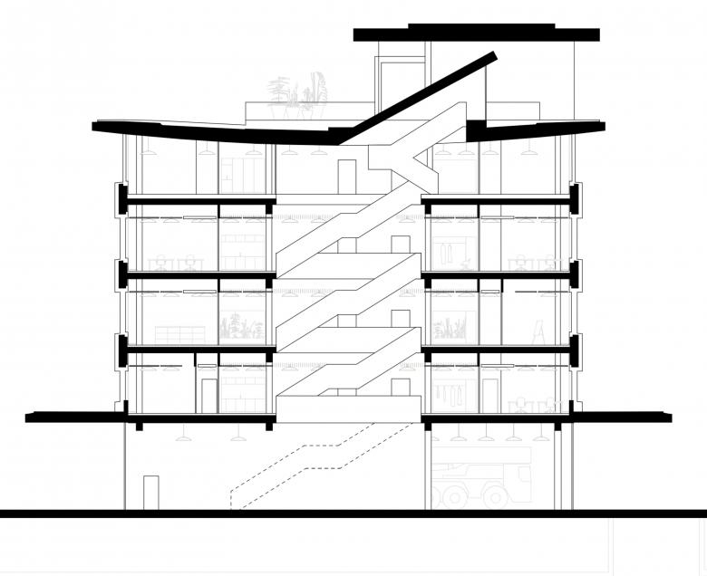
Der im Jahre 2017 von Herzog & de Meuron fertiggestellte Bau 10 ist ein Dienstleistungsgebäude mit den diversen Nutzungen wie medizinischer Dienst und Werksfeuerwehr. Die bis anhin im 2.OG und 3.OG angeordneten Werkstattnutzungen werden zu Büros nach ABW 5.0 Konzept umgebaut. Während der Bauzeit bleibt das Gebäude in Betrieb, so dass die Eingriffe ohne Beeinträchtigungen der Benützer erfolgen müssen.
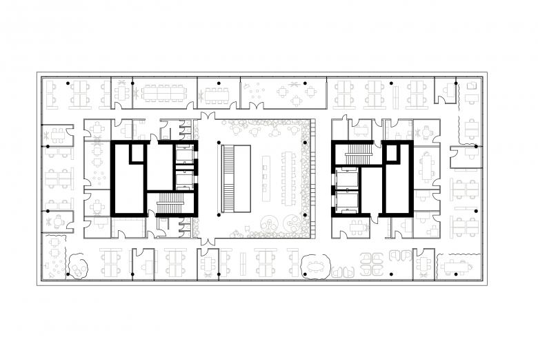
Durch ein harmonisches Material- und Farbkonzept soll aus den ehemaligen Werkstätten eine ruhige, attraktive Bürolandschaft entstehen. Mit gezielten akustischen Massnahmen und einer Optimierung der Haustechnik wird ein möglichst angenehmes Raumklima angestrebt. Ergänzt durch eine gleichmässige Ausleuchtung der Arbeitsplätze mittels der bestehenden Deckenleuchten, die punktuell gemäss neuem Konzept versetzt werden, sowie Tischleuchten, für die individuell steuerbare Beleuchtung des Arbeitsplatzes. Mit dem Einbringen von weichen Materialien, wie dem Teppichboden, den Vorhängen und den Filzlamellen, wird ein Kontrast zum Bestand mit eher harten Oberflächen erzeugt. Diese neuen Elemente dienen nicht nur zur Umgestaltung des Bestandes, sondern sind auch aus akustischer Sicht ein wichtiger Bestandteil für die Umsetzung der Anforderungen an den Schallschutz für die Arbeitsplätze.
Das Atrium als repräsentative Erschliessung und Verbindung aller Geschosse, vom Haupteingang im Erdgeschoss bis hin zur Dachterrasse, soll akzentuiert werden. Das Atrium wird jedes Geschoss als Begegnungszone bereichern und als identitätsstiftendes Element die Mitarbeiter über alle Geschosse vernetzen. Als Treffpunkt des Hauses entsteht im 2. Obergeschoss an zentraler Stelle eine grosszügige Erholungszone mit einladendem Coffee Point, der durch grosse Pflanztröge und üppige Begrünung zur Erholung einlädt.
Der Umbau wird durch ein Vorhangprojekt im Sinne von Kunst am Bau durch die Künstlerin Edit Oderbolz geprägt. Die Textilkunst erscheint als Leitmotiv und definiert die Eigenständigkeit des Bau 10 und dessen Nutzungsdiversität.
- 年
- 2022
- プロジェクトステータス
- 竣工済











