Studienauftrag Arealentwicklung Industriestrasse
STÄDTEBAULICHE DICHTE
Die Kooperation der fünf Genossenschaften bringt eine neue Dichte städtebaulich und inhaltlich auf das Areal an der Industriestrasse. Städtebaulich wird die Dichte auf eine Ausnützung von rund 240% angehoben, was in etwa der Bebauungsdichte in der Neustadt entsprechen dürfte. Auf dem Areal werden im Vergleich zu heute zehnmal mehr Menschen Raum zum Leben und Arbeiten erhalten. Inhaltlich verdichtet wird es durch die Mischung der verschiedenen Genossenschaften mit ihrer jeweils eigenen Kultur, die Integration des Bestandes und einer Nutzungsmischung, welche auch das Gewerbe nicht zu kurz kommen lässt. Der Projektvorschlag baut auf die Chancen einer konzentrierten, urbanen Lebenswelt. Gleichzeitig sollen aufgrund der Identität des Ortes und der Kontinuität einzelne, präzise ausgewählte bereits bestehende Bauten erhalten werden.
FÜNF BAUFELDER
Während das Baufeld 1 mit der Industriestrasse 9 weitgehend durch den Bestand der Häuser und des Gartenhofs bestimmt wird, definieren die vier weiteren Baufelder zusammen ein neues Gassen- und Strassensystem in einer kreuzförmigen Anordnung. Die Achse in Ost-West-Richtung ist dabei versetzt angeordnet, jene in Nord-Süd-Richtung erfährt im Innern des Areals eine platzartige Ausweitung. Damit wird Linearität unterlaufen: Die räumliche Vielfalt innerhalb des Areals wird betont und es entstehen überraschende ‚Blicke ums Eck'. Die Durchwegung des Areals und die Vernetzung mit dem umliegenden Quartier folgt dieser Idee und schafft eher informelle Verbindungen im Sinne von ‚Schleichwegen' und ‚Durchschlupfen'.
BAUVOLUMEN UND AUSSENRAUM
Die Neubauten orientieren sich in der Grösse des Footprints an den umliegenden Gebäuden des Quartiers. Die geforderte sechsgeschossige Bauweise übersteigt jedoch die Höhe der meisten Nachbargebäude und könnte sowohl zu diesen als auch arealintern zu einer allzu hohen Dichte führen. 1:500 Umgebung mit Dachaufsichten, genordet Kooperation Industriestrasse Luzern P H O E N I X Hier kommen die niedrigen Bestandesbauten zu Hilfe. Sie schaffen auf Erdgeschossebene einerseits eine klare Definition der Gassenräume. Darüber hinaus schaffen sie jedoch Luft und Licht für die darüberliegenden Geschosse. Sämtliche Gassenräume sind nicht unterbaut, eine ideale Voraussetzung für einzelne grosskronige Bäume, welche das Mikroklima positiv beeinflussen. Die Setzung dieser Einzelbäume erfolgt präzise, sei es an einer Gassenkreuzung oder auf dem Platz vor dem ausladenden Dach des ehemaligen Eisenwarenhandels. Die Befestigung der Gassen ist in Drain-Asphalt vorgesehen, der einerseits sickerfähig ist, andererseits eine für verschiedenste Nutzungen brauchbare Oberfläche bereitstellt.
VERNETZUNG
Das Areal wird durch zwei Hauptzugänge von der Industriestrasse und dem Geissensteinring her erschlossen. Sie führen zur platzartigen Ausweitung vor dem bestehenden Schuppen des ehemaligen Eisenwarenhandels, der neuerdings als Ausstellungshalle und Hallenflohmarkt genutzt wird. Seitlich führt der Weg unter dem Neubau der Wogeno hindurch zur Unterlachenstrasse. Die Verbindung von der Industriestrasse zur Kellerstrasse folgt zweiseitig um das Baufeld 2. Der Anschluss zur Kellerstrasse hin kann wie von der Kooperation vorgeschlagen zwischen den Häusern Kellerstrasse 42 und 44 erfolgen. Eine zweite Verbindung würde sich zwischen den Häusern Kellerstrasse 44 und 46 anbieten. Eine weitere Verbindung vom Geissensteinring folgt dem Parzellenrand und führt
entlang der Aussenräume von Kindertagesstätte und Kindergarten zur Unterlachenstrasse. Der Gartenhof der Industriestrasse soll weitestgehend die heutigen Qualitäten behalten und ist deshalb nicht als Teil eines übergeordneten Wegenetzes gedacht. Er besitzt jedoch sowohl von der Industrie- als auch von der Unterlachenstrasse her jeweils einen Zugang.
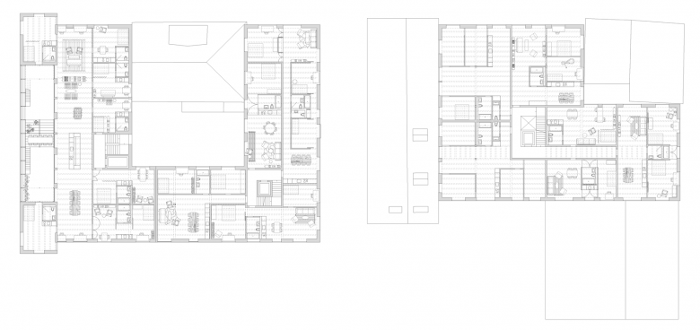
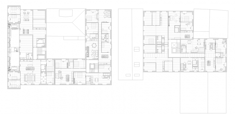
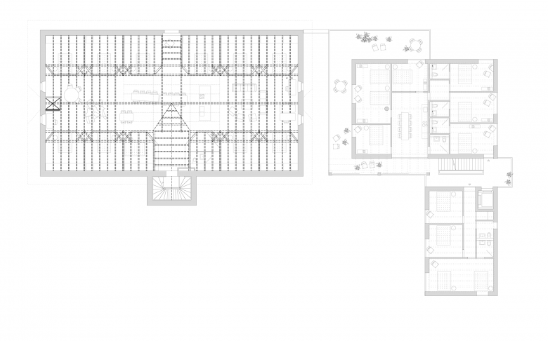
BAUFELD 1: GWI UND WOHNWERK
Die räumlichen Eingriffe in der Industriestrasse 9 werden so zurückhaltend wie möglich vorgeschlagen. Die Struktur wird erhalten, die Einbauten werden teilweise ausgeräumt und nichttragende Wände verschoben. Der bestehende Liftschacht wird bis ins Dachgeschoss verlängert und der Lift erhält durch den Teilabbruch der Rampe an der Industriestrasse einen ebenerdigen, behindertengerechten Zugang. Der Konzertraum im Untergeschoss bleibt, wo er ist, die Bar wird zugunsten der neuen WC-Anlage umdisponiert. Die Treppe hinter der Bühne verbindet den Konzertraum mit dem Gemeinschaftsraum im Hochparterre und dient als zweiter Fluchtweg. Das bestehende Treppenhaus mit Zugang zu den Ateliers und zur Grosswohnung kann so bei Grossanlässen im Konzertraum entlastet werden. Im Obergeschoss finden frei unterteilbare Ateliers Platz. Das Dachgeschoss erhält einen grosszügigen angeordneten Wohnraum mit einer grossen Dachverglasung im zentralen Bereich. Die Individualräume begleiten den gemeinsamen Wohnraum auf beiden Seiten. Der Rossstall erhält eine bauliche Erweiterung. Das Satteldach wird zugunsten einer Aufstockung rückgebaut. Im Erdgeschoss wird der bestehende Mittagstisch durch einen Quartierladen ergänzt. Im 1. Obergeschoss wird die vorhandene Wohnung erhalten und vergrössert. Ein Jokerzimmer und eine Dreieinhalbzimmerwohnung kommen hinzu. Im zweiten Obergeschoss ist die Gästepension des Wohnwerks untergebracht, in den darüberliegenden Geschossen befinden sich weitere Wohnungen und Wohnateliers.
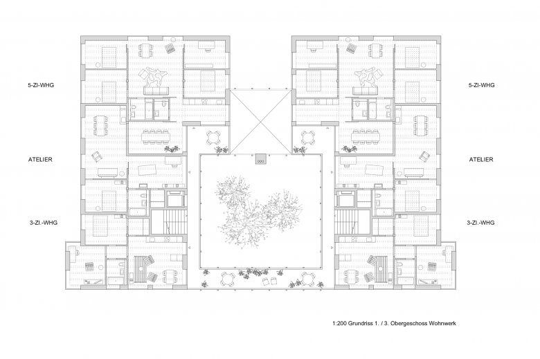
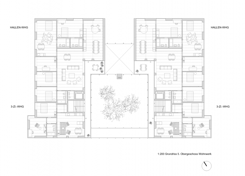
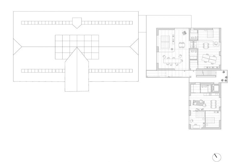
BAUFELD 2: WOGENO UND LBG
Wogeno und LBG sind auf dem Baufeld 2 an ruhiger, innenliegender Lage untergebracht. Zwei Zeilen - 10 und 14.30 Meter tief nehmen verschiedenen Wohnungstypen auf: Im schmalen Haus befinden sich die kleineren 3 ½- bis 4 ½-Zimmerwohnungen, im tieferen Gebäude die grösseren 5 ½- bis 6 ½-Zimmerwohnungen. Sowohl Wogeno als auch LBG besitzen Wohnungen in beiden Zeilen. Die effizienten vier- und fünfspännigen, zwischen den beiden Zeilen angeordneten Erschliessungen der Wogeno und der LBG funktionieren getrennt voneinander, könnten aber auch zusammengeschlossen werden. Die Erschliessungen führen jeweils zu privaten Terrassen, die der jeweiligen Wohnung vorgelagert sind und einen Übergang zwischen halböffentlicher Erschliessung und privatem Wohnbereich schaffen. Im EG sind sich in der östlichen Zeile der Kindergarten und die Kindertagesstätte mit begrüntem Aussenraum untergebracht. In der westlichen Zeile befinden sich zur Gasse hin Gewerbenutzungen. Zwischen den beiden Zeilen befindet sich im Erdgeschoss eine Veloeinstellhalle und im Untergeschoss findet die Parkgarage Platz.
- 年
- 2017
- プロジェクトステータス
- デザイン案
- クライエント
- Kooperation Industriestrasse Luzern
- チーム
- Samuel Aebersold, Yannick Dvorak, Roy Gehrig, Ivo Hasler, Sarah Infanger, Nicolas Rothenbühler, Jessica de Freitas Martins












