Wohnüberbauung Solistrasse Bülach
STÄDTEBAU & ARCHITEKTUR
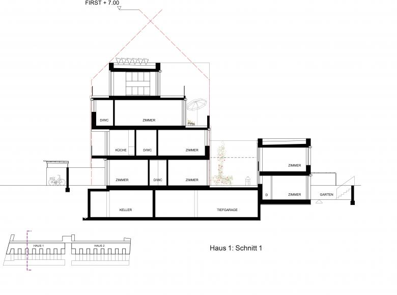
Das Gebiet zwischen Soli-, Steinacker- Wisli- und Irchelstrasse – am äusserten Rand von Bülach gelegen- zeichnet sich durch eine Bebauung aus, die vornehmlich aus Gewerbegebäuden besteht. Der Wandel vom Gewerbegebiet zum reinen Wohnquartier ist aber in vollem Gange, die alten Hallenbauten verschwinden nach und nach und machen dreigeschossigen Wohnbauten mit typischem Attika Platz.
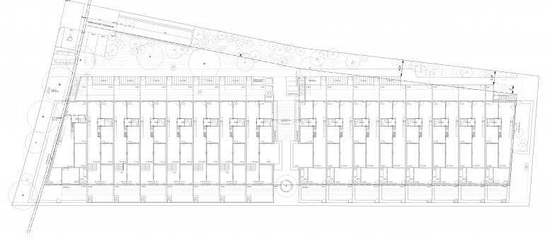
Die beiden Gebäudevolumen nehmen mit ihrem ausgedehnten Footprint von jeweils rund 22 auf 52 Metern Bezug auf die ehemals vorherrschenden Gebäudetypologien der Gewerbehallen. Über dem ausgedehnten Erdgeschoss, welches Wohnungen mit einer Hoftypologie aufnimmt, erheben sich drei weitere Geschoss mit über einen Laubengang erschlossenen Kleinwohnungen im 1. Obergeschoss und darüberliegenden Duplex-Typen, welche ebenfalls durch einen Laubengang im Attika erschlossen sind.
Verknüpft sind die beiden Gebäude mit einer mittig angelegten gemeinschaftlichen Begegnungs-Plattform im 1. und 3. Obergeschoss, welche zu den Laubengängen führt. Von der Solistrasse her werden die beiden Häuser nordseitig über einen sich gegen Osten verjüngenden gemeinsamen Aussenraum erschlossen, ein Fuss- und Veloweg über die benachbarte Parzelle im Nordosten, verknüpft ihn mit dem offenen Landschaftsraum an der Steinackerstrasse.
Eine Reihe Velohäuschen, den Hauptgebäuden vorgelagert, begleitet diesen Aufenthaltsraum und vermittelt zwischen öffentlichem Bereich und privaten Vorhöfen der erdgeschossigen Wohnungen. Ein weiterer Aufenthaltsraum für die Bewohner mit Sitzbänken und Pergolaüberdachung befindet sich zwischen den Häusern.
WOHNEN
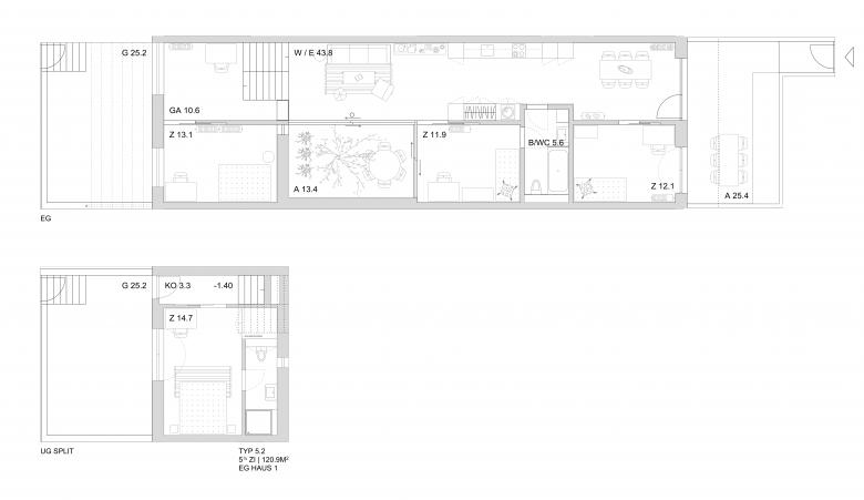
Die Lage der Wohnhäuser bietet keine grandiosen Ausblicke in die Landschaft. Der Entwurf der Wohnungen richtet deshalb das Augenmerk auf eine enge Verschränkung der Innenräume mit dem eigenen privaten Aussenraum. Die Erdgeschosswohnungen erhalten einen besonders reichhaltigen Austausch mit verschiedenen Aussenräumen: ein kühler nordseitig gelegener Vorhof, ein innenliegender Patio und ein südlicher Vorgarten mit südländisch anmutender Pergola. Die Kleinwohnungen im 1. Obergeschoss verfügen über eine grosszügige Terrasse. Die 3 ½-Zimmer-Duplexwohnungen besitzen zwei abgetreppt angeordnete ‚Hofterrassen‘ und die 4 ½-Zimmer-Duplexwohnungen eine grosse, dreiseitig umschlossene Terrasse im Wohngeschoss. Die unterschiedlichen Wohnungsgrössen und Wohntypologien lassen eine bunt gemischte Bewohnerschaft erwarten.
- 年
- 2026
- プロジェクトステータス
- 建設中
- クライエント
- Uze AG Uzwil
- チーム
- Jens Studer, Rahel Angst, Mirko Solinas, Lou Dumont, Fabio Isler
- Baumanagement
- Perita AG
- Landschaftsarchitektur
- Berchtolz.Lenzin Zürich GmbH
- Statik Brandschutz
- SJB Kempter Fitze AG
- HLS-Planung
- Vadea AG
- Elektroplanung
- R. Mettler AG
- Bauphysik
- Gerevini Ingenieure AG




