Mehrgenerationen-Haus im Morgen
Morgenstrasse 35, Wetzikon ZH, Suíça
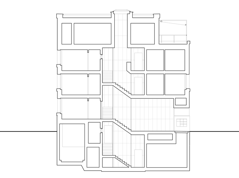
Als Ersatz für ein 85-jähriges Einfamilienhaus steht heute an der prägnanten Strassenecke ein Mehrgenerationen-Haus mit verschiedenartigen Wohneinheiten von 1.5 bis 5.5 Zimmern sowie ein hoher Atelierraum mit Nordlicht. Die quartiertypischen Oberländer Baumeister-Einfamilienhäuser aus den 1920er Jahren dienen als Vorbild für den architektonischen Ausdruck. Sie werden referenziert durch eine stehende Volumetrie, eine Konstruktion in Zweischalen-Mauerwerk mit einem strukturierten, roten Fassadenputz, sowie einer klassischen Fassadengestaltung mit Öffnungen im Hochformat, massiven Fensterbrüstungen und einer Einteilung in Sockel, Mittelteil und Dach. Dabei folgt der Haussockel dem abfallenden Terrain. In der Untergeschoss-Wohnung antwortet ein Atrium als umschlossener Aussenraum auf die Hangtopografie. Die Erschliessung in der Hausmitte erlaubt eine Orientierung der grossen Wohnungen in vier Himmelsrichtungen und weitere Einfamilienhaus-Qualitäten im Mehrfamilienhaus: Der Hauptzugang auf einem Halbgeschoss, ineinander geschachtelte, überhohe Räume, sowie eine am Treppenhauskern aufgehängte, stützenlose Tiefgarage, die als Partyhalle genutzt werden kann.










