Umbau Jugendstilhaus Villa Seeblick
Schneebergstrasse 10, St. Gallen, Suíça
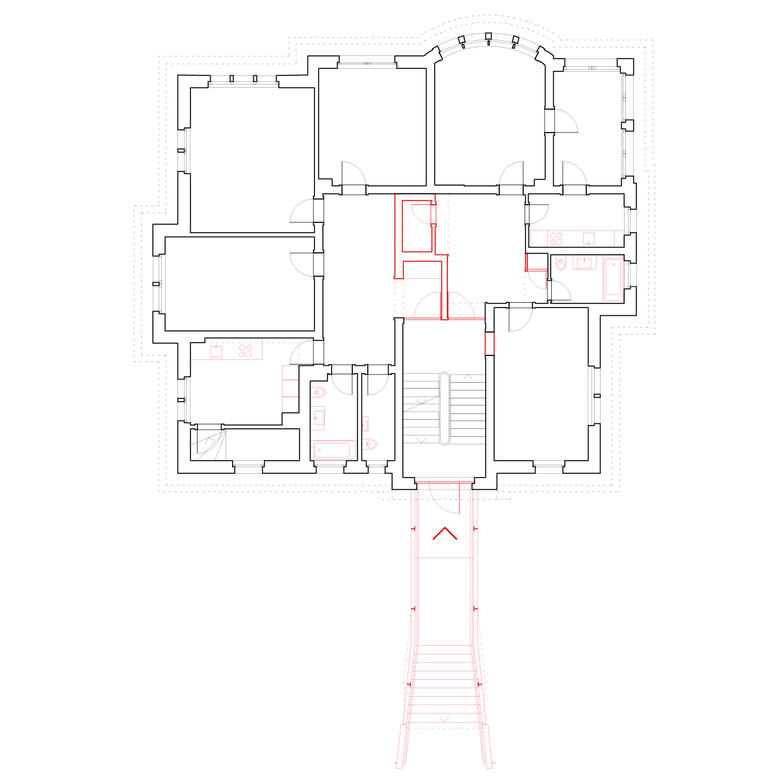
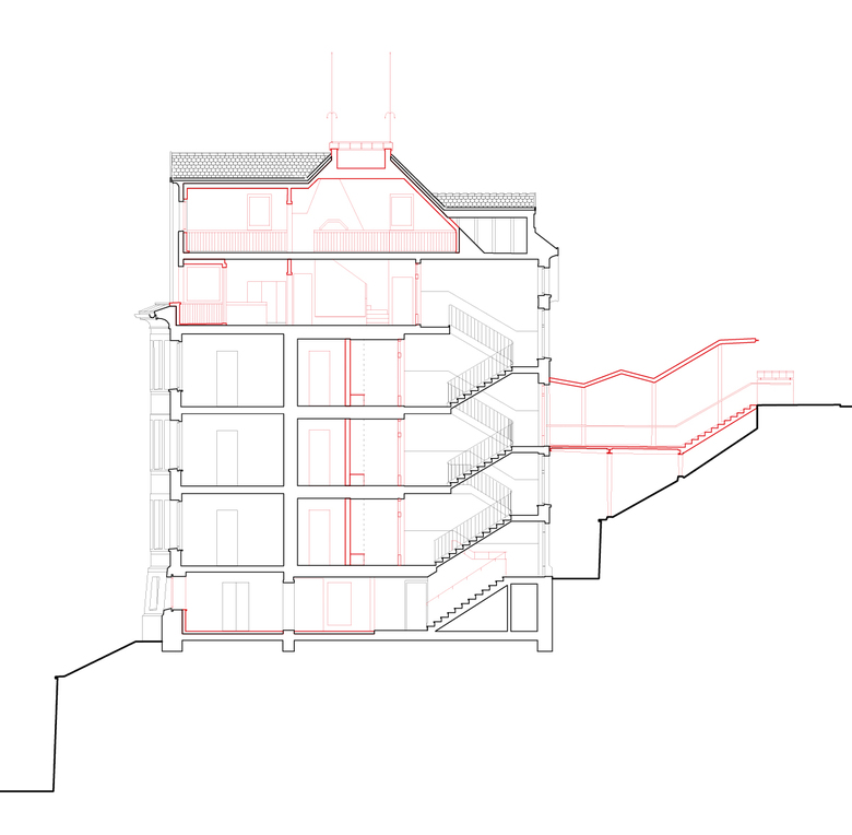
Totalsanierung des 1908 von Anton C. Buzzi erbauten Jugendstilhausess mit neun Wohneinheiten von 2.5 bis 4.5 Zimmer. Das prominent am Hang über St. Gallen gelegene Haus verfügt neu über einen direkten Zugang von der Schneebergstrasse her. Die sechs sanft renovierten bestehenden Wohnungen wurden durch drei neue im Sockel- und Dachgeschoss ergänzt. Der gesamte Umbau wurde unter Einhaltung von denkmalpflegerischen Gesichtspunkten, in einer intensiven Auseinandersetzung mit dem Bestand erarbeitet.










