Reihenhäuser Paderborn
Paderborn, 德国
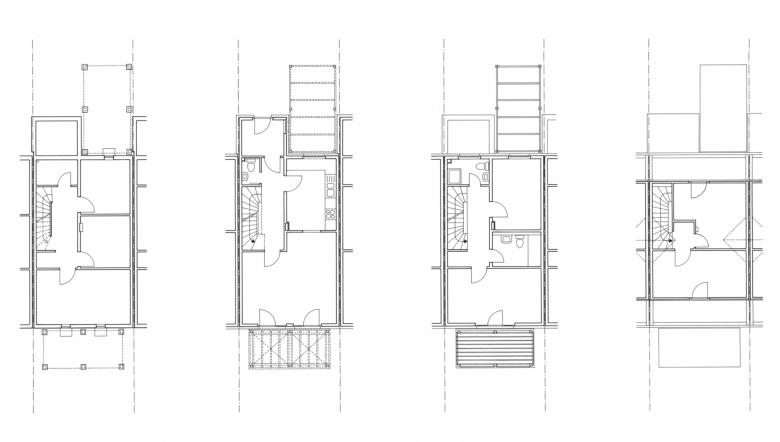
Zwei Reihenhausgruppen mit je fünf Häusern für kinder- reiche Familien. Kosten- und flächensparendes Bauen, öffentlich gefördert. Flexible Wohnraumnutzung auf drei Ebenen mit Dachterrassen, Balkonen und Hausgärten.









