安顺民宿村

安顺, China

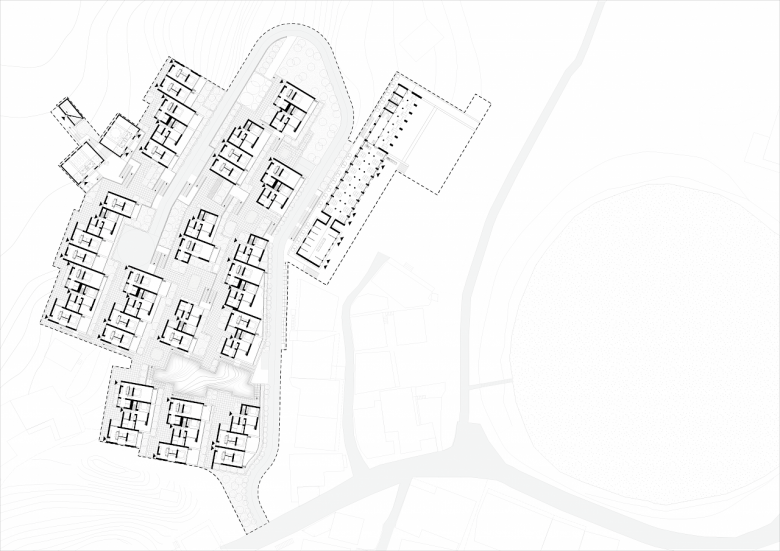
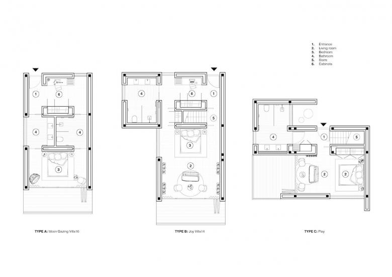
叠术建筑在贵州安顺的一个村落设计了41个乡村民宿建筑单体。室内和室外设计简洁沉静,提倡恬静的生活方式与喀斯特自然风光的结合。设计策略没有拆除所有旧村子的建筑,而是利用一些现有建筑加以改造作为特殊功能的空间。项目也激发了餐厅、展览、瑜伽、图书馆和舞蹈工作坊等功能。如何在建筑设计中结合山地地形,使建筑到达方式舒适,是设计过程中的重要挑战。

Architects
叠术建筑设计咨询(北京)有限公司
Estat del projecte
Disseny
Equip
Carolyn Leung, Ben de Lange, Ruben Bergambagt, 杜云桥, 许潇予, Ana Raluca Timisescu, Michał Marcinkowski

Projectes relacionats 

  • Moos
    playze
  • Reiters Reserve Premium Suiten
    BEHF Architects
  • Erweiterung und Instandsetzung Hallenbad Altstetten
    MIYO Visualisierung
  • Neubau von fünf Einfamilienhäusern
    Bäumlin+John AG
  • The Forge in der 105 Sumner Street in London
    Kiefer Klimatechnik GmbH

Revista 

Altres projectes per 叠术建筑设计咨询(北京)有限公司 

ECO-BD
China
杭州万科天空之城
杭州, China
红色庭院
北京, China
山谷
China
长治博览中心室内设计
Changzhi, China